EasyManua.ls Logo

Macurco RD-6 - Page 9

Macurco RD-6
63 pages
Print Icon
To Next Page IconTo Next Page
To Next Page IconTo Next Page
To Previous Page IconTo Previous Page
To Previous Page IconTo Previous Page
Loading...
Macurco RD-xx User Manual
REV – 1.0 [34-2900-0511-7 ] 9 | Page
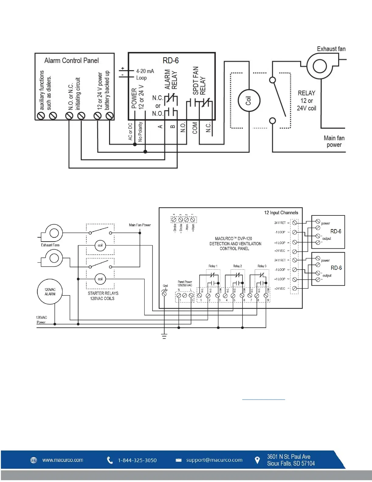
Figure 3-3 6-Series Garage Diagram
Figure 3-4 6-Series Multiple Device Diagram
1. One sensor per 900 square feet (approximately)
2. Mount the RD-6 about one foot above the floor.
3. See application building code for fan size and air changes per period of time.
4. Make sure that there are air inlets to provide adequate airflow throughout the building.
5. The RD-xx fan relays are dry contact and can switch up to 240V (see section 2.4 Specifications
)
6. Several fan relays (starters) may be used. Match the relays to the fan specifications.

Table of Contents

Related product manuals