EasyManua.ls Logo

Macurco RD-6 - Page 10

Macurco RD-6
63 pages
Print Icon
To Next Page IconTo Next Page
To Next Page IconTo Next Page
To Previous Page IconTo Previous Page
To Previous Page IconTo Previous Page
Loading...
Macurco RD-xx User Manual
REV – 1.0 [34-2900-0511-7 ] 10 | Page
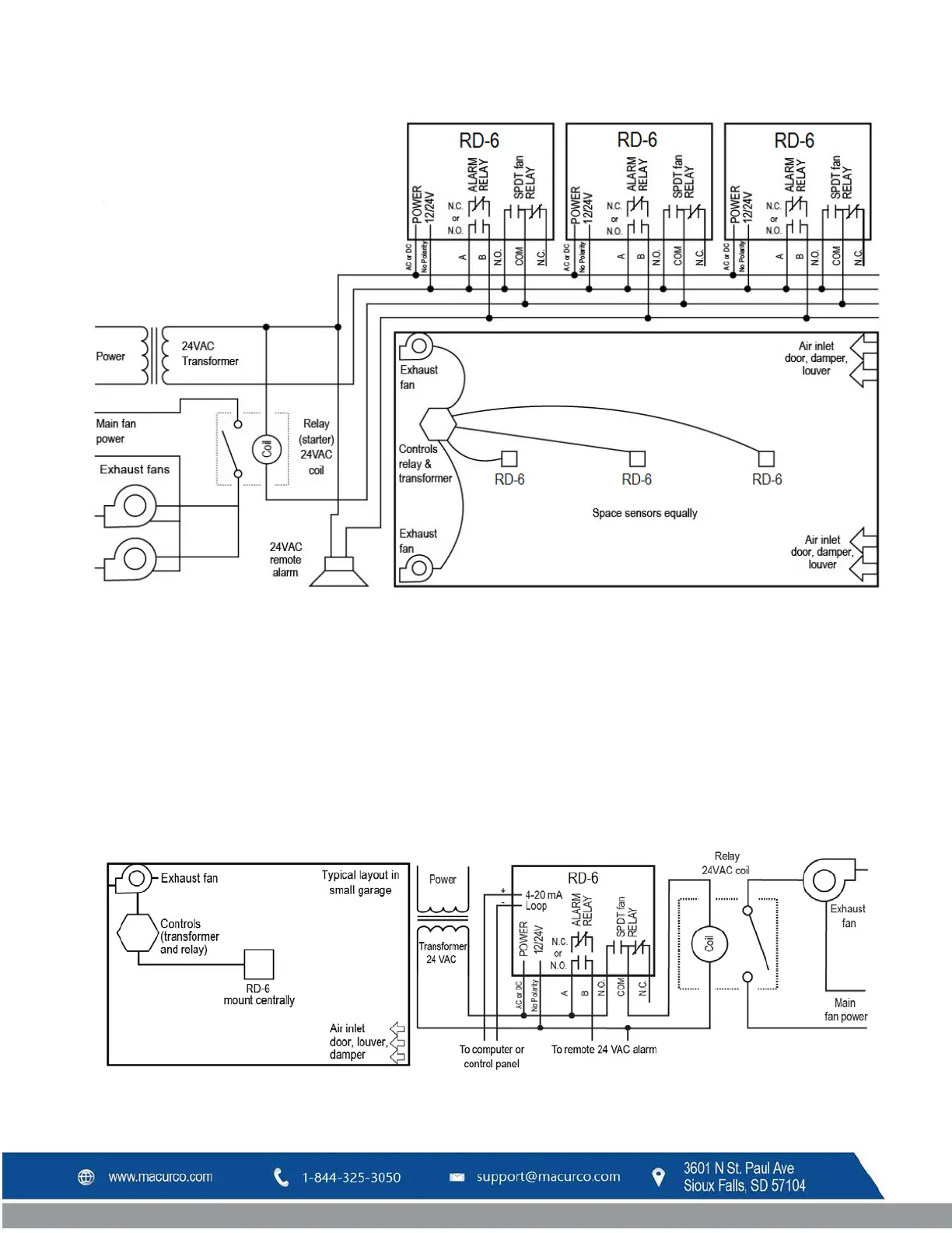
Figure 3-5 6-Series Alarm Control Panel Diagram
1. The RD-6 can be used with 12VDC or 24 VDC fire panels.
2. Alarm panel provides battery backup power to the RD-6.
3. The RD-6 dry contact relay can use panel power or fan power (See Ratings).
4. Match fan relay contacts to fan size and coil voltage to a power source.
5. Alarm control panels are available with many features and can control other devices such as smoke detectors, fire
detectors, and burglar alarms.

Table of Contents

Related product manuals