EasyManua.ls Logo

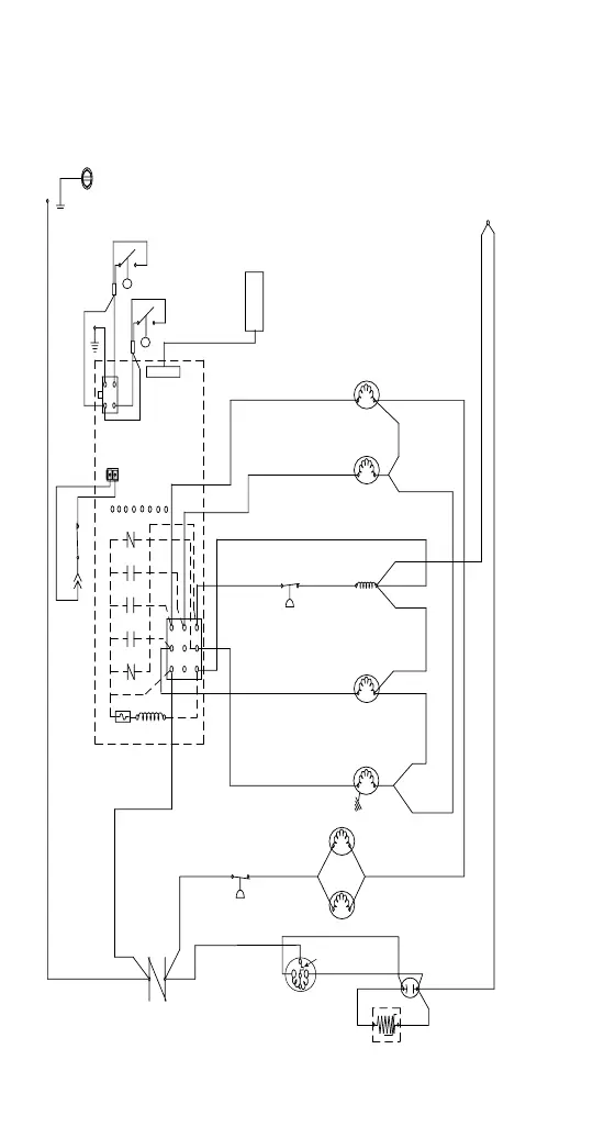
Manitowoc UYF0140A - U0310 Wiring Diagram Prior to Thermistor Terminal - 1 PH Air;Water

Manitowoc UYF0140A
260 pages
Print Icon
To Next Page IconTo Next Page
To Next Page IconTo Next Page
To Previous Page IconTo Previous Page
To Previous Page IconTo Previous Page
Loading...
244 Part Number 000014797 Rev02 05/18


Self Contained Air & Water-cooled
RED
WHT
1
2
3
4
L1
(14) BRN
(12) PRPL
(15) BRN
(48) BLK
C
S
R
S
040003315 REV05
(30) BLU
(32) BLK
(8)
BLU
(7)
BLU
(32) BLK
(31) BLU
(30) BLU
(10)
BLU
(11)
BLU
L2 (N)
(42) WHT
(37) ORG
(2) BLU
(4) YEL
(3) YEL
(6) RED
(5) PNK
(34) PRPL
GRD
(47) YEL
(49) RED
R
(46) ORG (45) BLU
5
11
25
42
17
56
55
41
19
28
18
7
9
40
14
27
26
58
31
14
34
3

Table of Contents

Other manuals for Manitowoc UYF0140A

Related product manuals