EasyManua.ls Logo

Marantz SD1000 - Exploded Views and Parts List; Top Cover & Main Chassis Parts List

Marantz SD1000
32 pages
Print Icon
To Next Page IconTo Next Page
To Next Page IconTo Next Page
To Previous Page IconTo Previous Page
To Previous Page IconTo Previous Page
Loading...
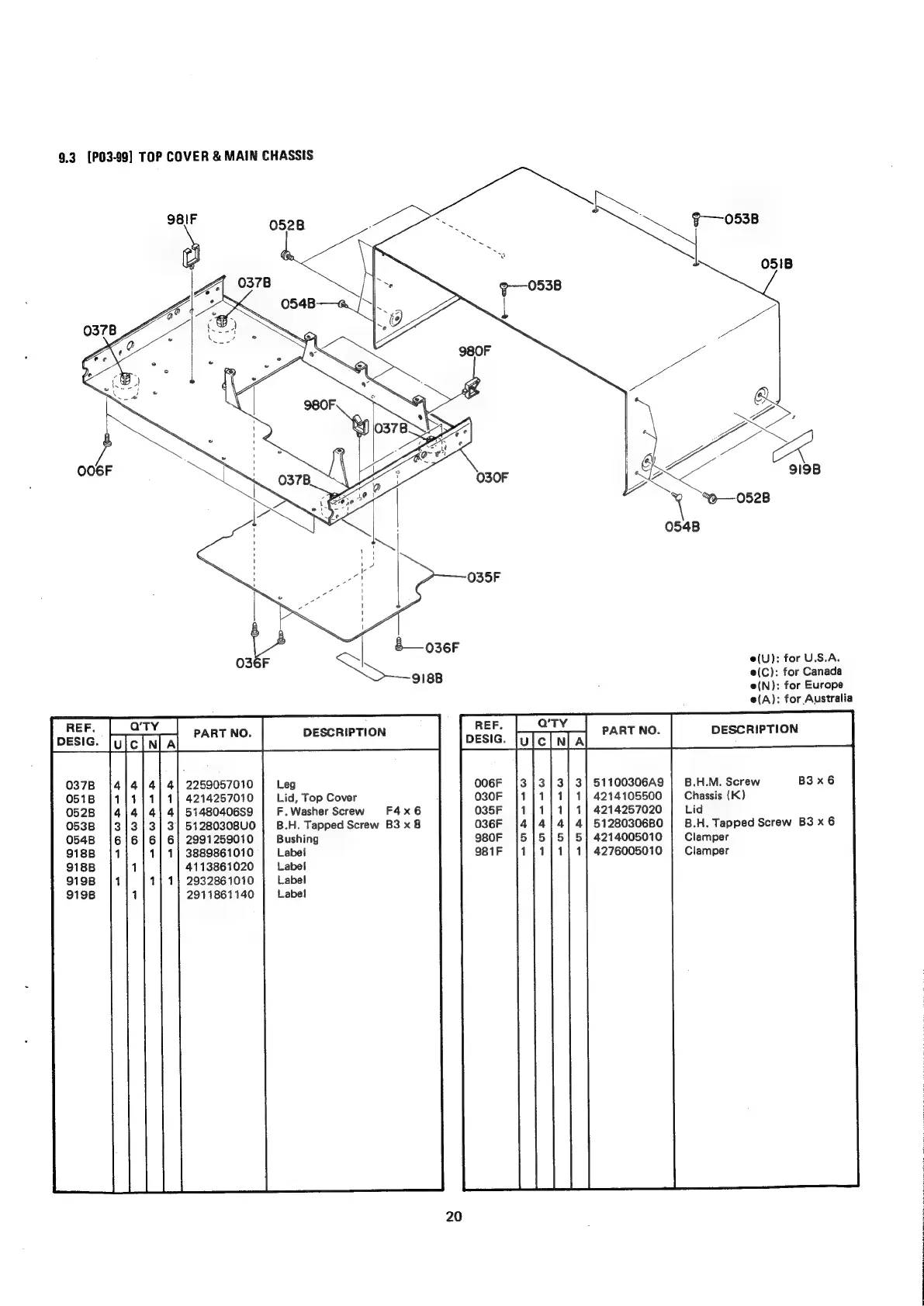
9.3
[P03-99]
TOP
COVER
&
MAIN
CHASSIS
§-—053B
0518
a
We
ae
;
oe
=
DA
a
ZAG
Ka
X
%@—
0528
054B
e(U):
for
U.S.A.
e(C):
for
Canada
e(N):
for
Europe
@(A):
for
Australia
PART
NO.
DESCRIPTION
PART
NO.
DESCRIPTION
lujc|
Ni
al
2259057010
4214257010
5148040689
51280308U0
2991259010
3889861010
4113861020
2932861010
2911861140
51100306A9
|
B.H.M.
Screw
B3x6
4214105500
Chassis
(K)
4214257020
Lid
51280306B0
B.H.
Tapped
Screw
B3
x
6
Leg
Lid,
Top
Cover
F.
Washer
Screw
F4x6
B.H.
Tapped
Screw
B3
x
8
Bushing
4214005010
Clamper
Label
4276005010
Clamper
Label
Label
Label
20

Related product manuals