EasyManua.ls Logo

Marantz SR-19EX - Page 9

Marantz SR-19EX
63 pages
Print Icon
To Next Page IconTo Next Page
To Next Page IconTo Next Page
To Previous Page IconTo Previous Page
To Previous Page IconTo Previous Page
Loading...
11 12
-
+
-
+
1
234
5678
VCC
VSS
Q202
LA02
CA01
LA01
C223
CA02
Q201
LA06
R207
C318
X501
C215
C306
Q501
RA06
CA08
LA03
DA03
CA13
CA06
RA03
L359
X351
R352
C354
C351
C353
C315
R217
C219
C207
FA01
CA18
C211
C303
C304
C503
C361
C362
C363
C364
C360
C316
RA04
R101
R317
R318
C319
C320
LA04
D202
R353
DA05
J101
RA13
L355
L354
L353
L352
L356
C214
L301
L302
RA10
R301
R302
R304
R303
C317
Q301
Q353
Q352
QA05
QA04
QA06
D504
J105
DA04
DA02
RA12
R205
R203
CA05
CA03
RA01
RA02
C201
R204
R202
CA12
CA11
RA08
RA07
CA14
CA07
RA09
CA09
C218
C216
C202
C233
C203
C206
R220
R213
R208
C208
C236
RA11
C210
C222
C220
Q203
C507
R506
R510
R504
C508
C217
R215
CA04
QA03
C235
C234
C226
R214
Q204
C501
C502
R502
C225
R509
R515
R507
C504
C511
R505
C510
R511
R513
C358
C352
C355C359
C305
R309
R310
C311
R307
R308
C312
C370
C371
C372
C368
C367
R201
RA14
C212
R210
C213
R323
R209
A101
C227
C204
C205
R206
C237
R316
R315
C209
Q205
L501
L502
L503
L504
L351
C505
L350
LA05
L201
J106
J102
J104
R355
F202
R508
F201
R211
R212
RA59
C509
Q302
Q303
C302
C301
Q351
C356
R357
C357
R321
R322
R216
C309
C310
C369
C373
C512
C513
D502
DA01
Q354
QA01
QA02
R319
R320
R516
2SC1809S
P
MW-OSC
20P
MW-ANT
0.047
LA1837
450KHZ
180
1/4W
100p
7.2MHz
0.047
4.7/50V
LC72130
100K
20P
LW-ANT
VCD
0.01
10K
4.322MHz
100k
560p
0.01
330p
0.01
180
1/4W
10/50V
100/10V
SFZ450JL3
4.7/50V
2.2/50V
10/50V
10/50V
100/10V
100p
100p
100p
100p
1000p
0.01
150K
10k
1/2W
U ONLY
47k
47k
4.7/50V
4.7/50V
LW-OSC
9.1V
47k
MA716
TKD31-6215A
0
0
0
0
0
47/25V
LPF-V10-A1
LPF-V10-A1
10K
F.N(LW)ONLY
47
47
10k
10k
100p
NJM4558M
DTC114ES
/UN4211
/KRC102M
DTA114ES
/UN4111
/KRA102M
DTA114ES
/UN4111/KRA102M
N(LW)ONLY
DTA114ES
/UN4111/KRA102M
N(LW)ONLY
DTC114ES/UN4211
/KRC102M
N(LW)ONLY
RB425D
12MQ-ST-L
TO JY02(PY04)
1SS356
1SS356
0.01
0.01
0
0
330
2.2K
47P
CH
15P
CH
10K
100K
0.01
470
390
150P
CH
68
CH
150K
10K
0.01
0.01
2.2K
15P
CH
0.01
100/16V
0.01
0.01
0.047
10/50V
100
47
2.7K
0.047
0.01
10K
0.01
1000P
B
2200P
DTA114ES
/ETC
0.01
1K
4.7K
4.7K
100/16V
0.027
27K
390P/100V
2SD2144
S/U/V
0.01
4.7/50V
0.01
47K
DTC144ES
47P
CH
47P
CH
2.2K
0.01
22K
10K
68K
0.01
0.01
1K
100P
CH
8.2K
10K
10/50V
10/50V
0.01
10/50V
4.7/50V
47K
47K
4.7/50V
220
220
4.7/50V
100P
CH
100P
CH
100P
CH
100P
CH
100P
CH
0
0
1/50V
3.3K
0.47/50V
4.7K
4.7K
2200P
0.047
3.3/50V
6.8K
0.01
2.7K
2.7K
10/50V
DTC144ES
0
0
0
0
2.2/50V
39MH
10k
FM CF
47k
FM CF
10k
10k
1K
0.01
DAMMY
DAMMY
0.033
0.033
LC72722
22p CH
10k
27p CH
JUMPER
JUMPER
1k
DAMMY
DAMMY
DAMMY
DAMMY
DAMMY
DAMMY
DAP202K
N(LW)ONLY
SVC342-L
2SC536
SP/ETC
2SC536
SP/ETC
2SC536
SP/ETC
15k
15k
DAMMY
F ONLY
+15VT
15V-4
+15VT
15V-4
+15VT
15V-4
+15VT
15V-4
-15VT
-15V-5
+15VT
15V-4
+15VT
15V-4
-15VT
-15V-5
+5VT
5V-6
+5VT
5V-6
+5VT
5V-6
+15VT
15V-4
+5VT
5V-6
+15VT
15V-4
-15VA
-15V-5
TUN-L
TUN-R
+15VA
15V-4
+5VT
5V-6
TU-CE
TU-CLK
TU-CLK
TU-CE
TU-DO
TU-DO
RDS-DI
TU-DO
TU-CLK
RDS-DI
TU-CE
TU-DI
TU-DI
FM
75ohm
GND
AM
1
23456789
10
11
12
13141516171819
20
21
222324
1
23456789
10
11
12 13 14 15
16171819
20
21
2223242526272829
30
ANT
TERMINAL
MONO/ST
AM STOP
SEP
FM MUTE
(0.0)
?0?
MONO DIST
AM IF
FM/AM IF MPX
PLL-BLOCK
FM AM IF/MPX
3.9V
3.1V
12.0V
(0V)
(0V)
(0V)
(3.9)
14.9
?14.9?
14.9
(14.9)
P104-1/2
TU-SD
F201
(0V)
0V
(0V)
0V
[4.3V]
[3.6V]
0
(0)
0
0
(3.6V)
?0V?
0
(4.3V)
131415
16
1718
19
20
21
2223
24
1
23456789
10
11
12
(CH)
(CH)
RDS BLOCK
OSC-KIL
LW
MW
LW TRACKING
LW TRACKING
?0?
0
(15.0)
0
(0)
?15.0?
[0V]
MW TRACKING
MW TRACKING
170kHz
260kHZ
U
TU-CLK
TU-CE
0
5.1
TU-DO
TU-DI
DO
CLK
DI
CE
STRQ
MUTE
VDD
VSS
ST-IND
RDS-DI
AM(LW)BLOCK
STRQ/MUTE
VREF
VDDA
VSSA
MPXIN
CIN
T1
T2
T3
T4
T5
XOUT
XIN
VDDD
VSSD
T6
T7
SYNC
DO
CL
DI
CE
SYR
RDS-DI
FL-OUT
1400/1404kHz
600/603kHz
FM
108MHz
AM
87.5MHz
2.1V
7.2V
1.1V
7.6V
520/531kKHz
1710/1602kHz
TUNER-L
TUNER-R
+15VT
-15VT
+5VT
A4
A4
A4
A4
A4
A4
A4
A4 A4
A4
A4
A4
A4
A4
A4
A4
A4
A4
A4
A4
A4 A4
A4
A4
A4 A4
A4 A4 A4 A4 A4
A4 A4 A4 A4 A4 A4
A4
A4
A4 A4
A4
A4
A4
A4
A4 A4 A4 A4
A4 A4
A4 A4
A4 A4A4
A4
A4
A4
A4
A4
A4
A3 A3
A3
A4
A3
A3
A3
(RTR)
FM
FRONT-END
ANT
VT
IF OUT
A3
M
M
C,K,S:FF11070620
U :FF11070610
S ONLY
A4
U,K,S ONLY
K,S
PRE AMP C,K,S ONLY
1
2
3
4
5
6
7
8
VOLTAGE BY MODE
* :FM
(*):AM(MW)
[*]
:AM(LW)
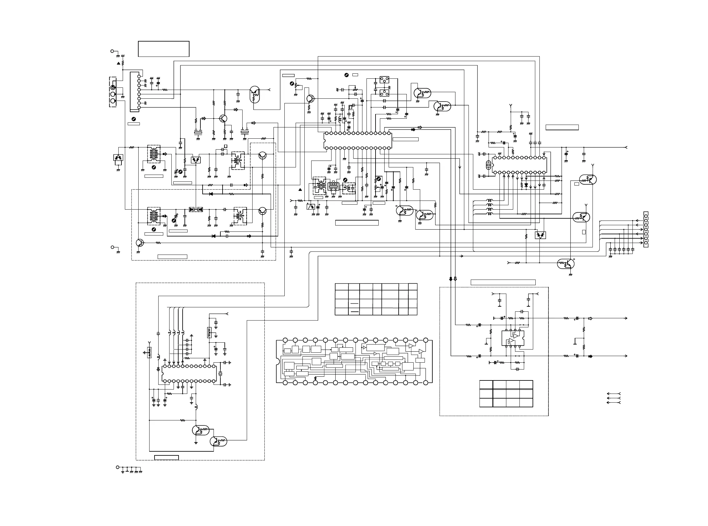
Tuner P.C.Board
A4
GND
A4
VCC
OSC-O
A4
GND
GND A4
FMIN
AMMO
MPXF
AMIFIN
GND
TU
ST
VCC
FMD
AMCF
FMS
AMSD
IFO
PCF
PD
LO
RO
_LI
_RI
MPXOL
MPXOR
MPXI
OSC
REG
AFC
AGC
AMDO
FMO
OSCB
RFI
_LW
M/_S
_FM
NC
1
2
3
4
5
6
7
A4 A7 A9
A4
A4
A8
U,K,S ONLY
_ON/OFF
A4
A4
U
C,K,S
R301
R302
R321
R322
C305
C306
0
47
JUMPER
OPEN
4.7/50
JUMPER
ONLY
U,K,S
ST DIST
TUNING VOLTAGE A101 4pin
C227
C217 R215
C301/302
R201
R211
2200P
0.027
27k
0.047
0 10k
0.015
68k
0.033
100
22k
C
0.015
68k
0.047
100
22k
1 2 3 4 5 6 7 8 9 101112131415
161718192021222324252627282930
VCCGND
FM IF
REG
AM
OSC
AM
MIX
AM
RF AMP
AGC
AM/FM
BUFF
IF/DET
AM
COMP
BUFF
DECORDER
MUTE
STEREO
SW
PILOT
DET
FF
FF
FF
VCO
V-SM
AM
S-METER
STEREO DRV.
PHASE DET
SD
TUNING DRIVE
FM DET
S-CURVE
FM
S-METER
L
R
L
R
Q201 LA1837

Related product manuals