EasyManua.ls Logo

Mark ERV500 - Page 101

Mark ERV500
160 pages
Print Icon
To Next Page IconTo Next Page
To Next Page IconTo Next Page
To Previous Page IconTo Previous Page
To Previous Page IconTo Previous Page
Loading...
101
NL
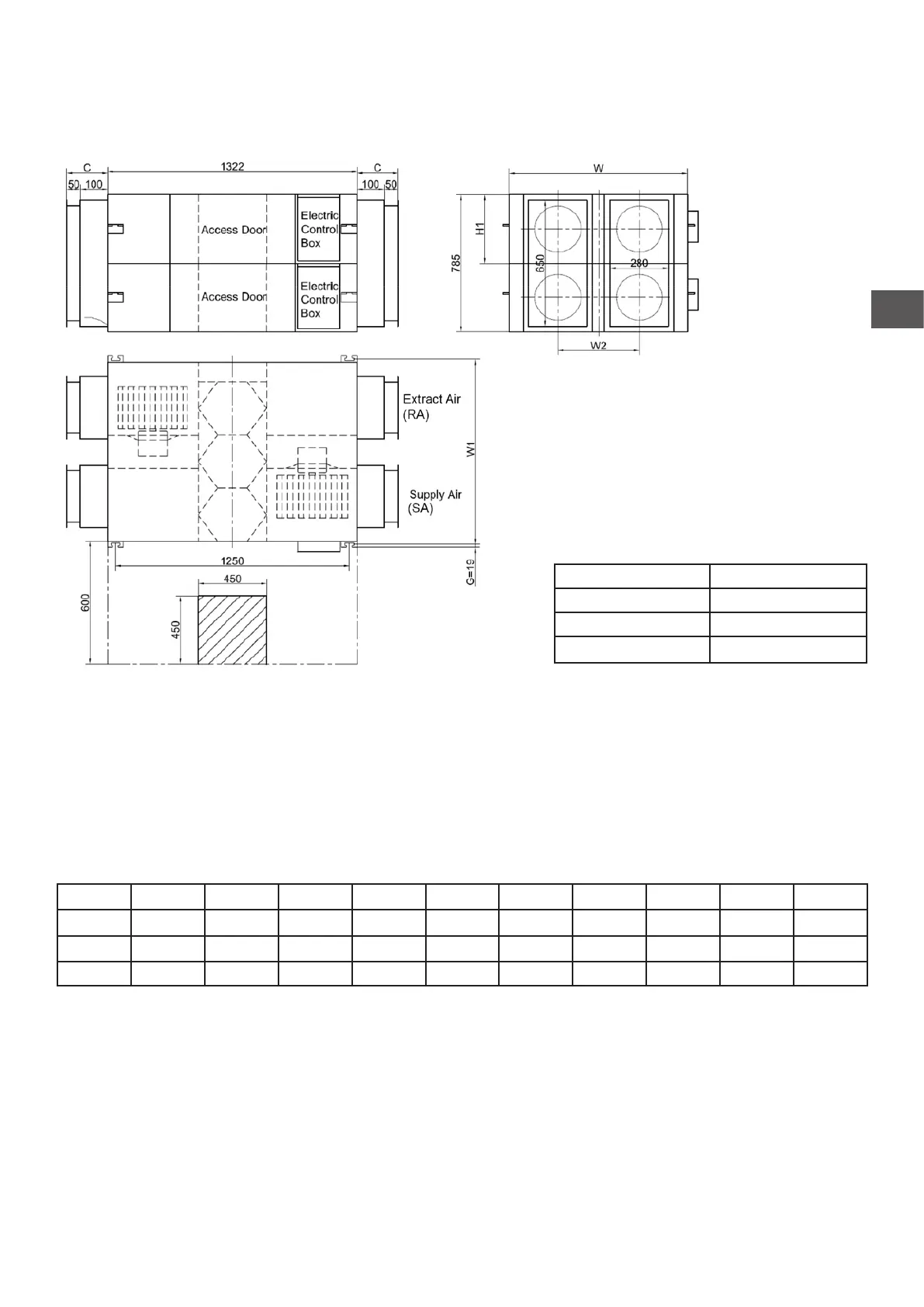
ERV2000 MODEL
Model Dia. (mm)
ERV500 ø 200
ERV1000 ø 250
ERV2000 280*650
DIMENSIES
De tabel hieronder toont geschikte kanaalmetingen voor elke eenheid. De onderstaande tabel toont de
afmetingen van de afbeelding hierboven en de twee afbeeldingen hiernaast, de letter in de tabel geeft de
letter op de tekening weer.
Model L L1 W W1 W2 H H1 C G N
ERV500 962 890 904 960 500 270 111 107 19
ø 194
ERV1000 1322 1250 1134 1190 678 388 170 85 19
ø 242
ERV2000 1322 1250 1134 1190 678 785 170 150 19 280*650

Related product manuals