EasyManua.ls Logo

Mark ERV500 - Page 69

Mark ERV500
160 pages
Print Icon
To Next Page IconTo Next Page
To Next Page IconTo Next Page
To Previous Page IconTo Previous Page
To Previous Page IconTo Previous Page
Loading...
FR
69
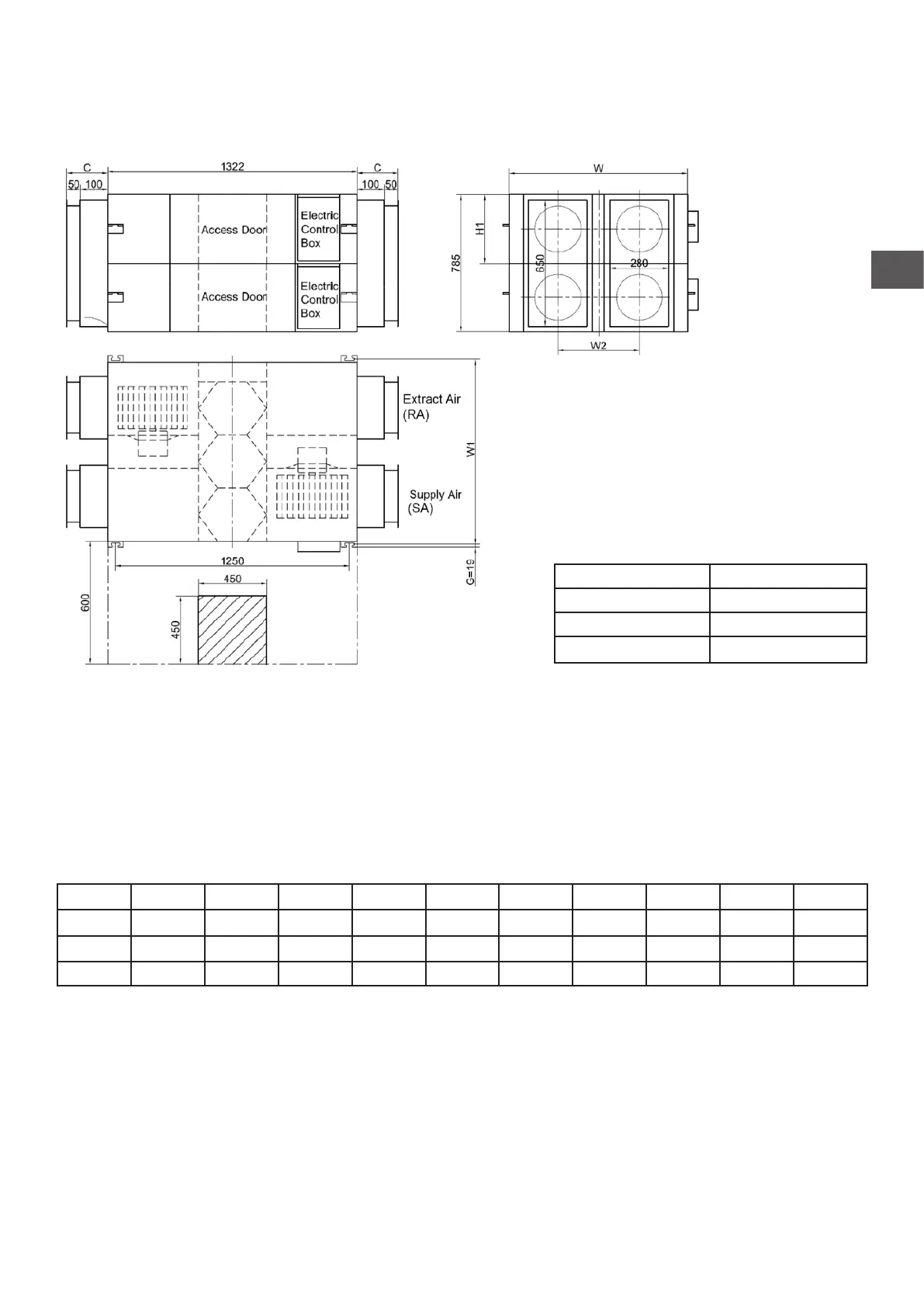
ERV2000 MODELE
Modele Dia. (mm)
ERV500 ø 200
ERV1000 ø 250
ERV2000 280*650
DIMENSIONS
Le tableau ci-dessous montre les mesures de gaines appropriées pour chaque unité. Le tableau ci-dessous
montre les dimensions de l'image ci-dessus et les deux images ci-contre, la lettre dans le tableau représente
la lettre dans le dessin.
Modele L L1 W W1 W2 H H1 C G N
ERV500 962 890 904 960 500 270 111 107 19
ø 194
ERV1000 1322 1250 1134 1190 678 388 170 85 19
ø 242
ERV2000 1322 1250 1134 1190 678 785 170 150 19 280*650

Related product manuals