EasyManua.ls Logo

Mark GS+ - Page 57

Mark GS+
204 pages
Print Icon
To Next Page IconTo Next Page
To Next Page IconTo Next Page
To Previous Page IconTo Previous Page
To Previous Page IconTo Previous Page
Loading...
57
FR
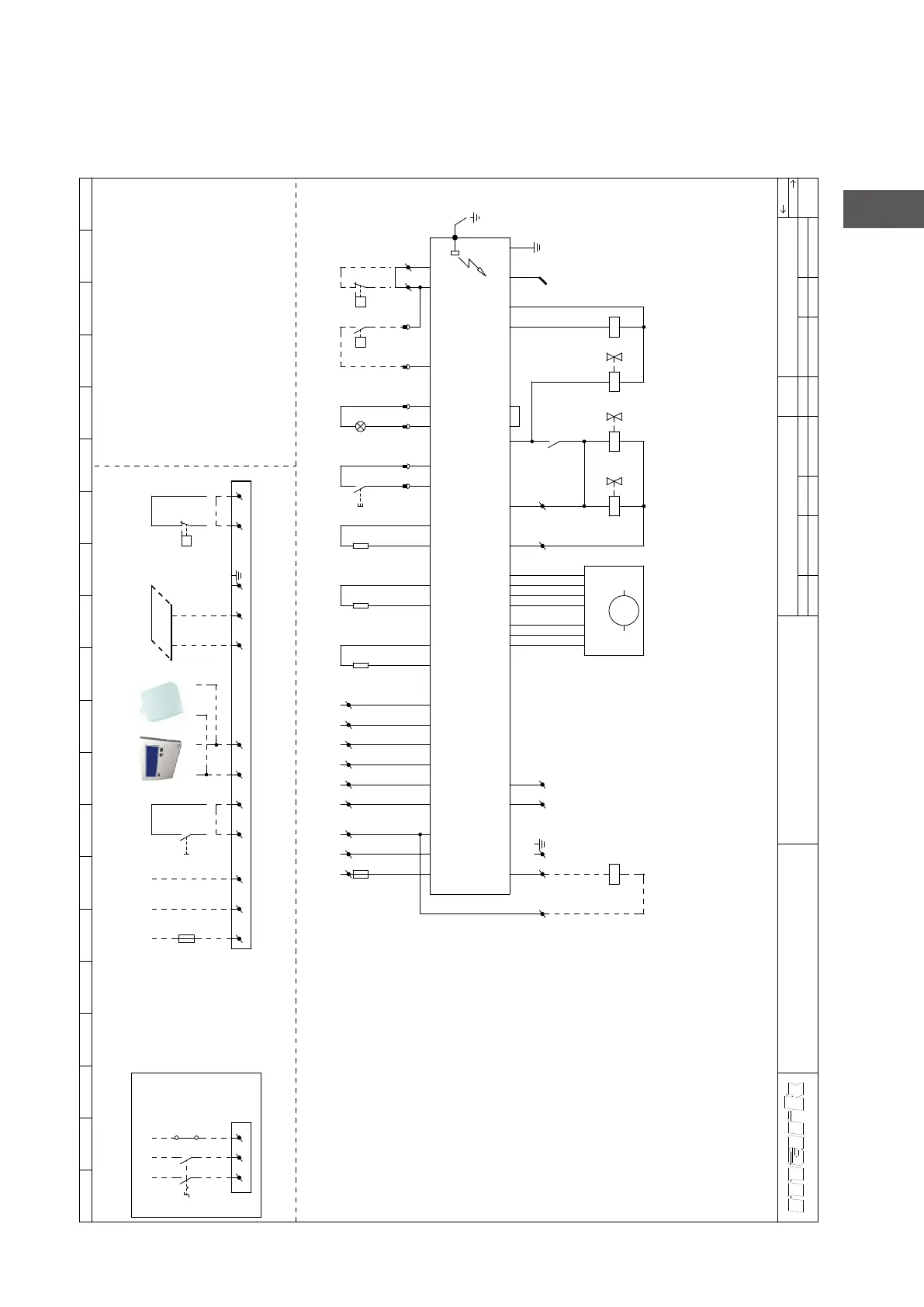
9.0 Schéma électrique GS+ 100
Pour GC+: voir l’intérieur de l’appareil.
1 2 3 4 5 6 7 8 9 10 11 12 13 14 15 16 17 18 19 20
G+ 100 GAZ NATUREL
Avec electrovanne bypass
Get.
Gec.
Schema electrique
J.W.
TvD
Date
Norm
28-1-2022
Schéma
d'electrique
Groupe
Art.nr.
WLV Type
Version
WLV-012240-FR
GS+
1.1
1
c l i m a t i s a t i o n
R
Argus 864MN
Ts = 5sec
Tp = 30sec
Alimentation
Sonde de température digital (option)
Réarmement á distance
Interrupteur marche/arret (facultative)
Thermostat d'ambiance digital
Ventilateur de chauffage
Barre d'ionisation
Témoin défaut
Vanne gaz
Fusible
-
-
-
-
-
-
-
-
-
TT3
S2
S1
RT
VLV
IS
H1
GV1,GV2
F1,F2
1˜ 230V / 50Hz
L'interrupteur de proximitéWS -
TT1
TT2
-
-
Sonde de température de proximité
Sonde de température système / maximal
PE
Pressostat de filtre (si nécessaire)-PF
Raccordement externe
RT TT3
Maximum 8
appareils
BUS
facultative
Moteur ventilateur 1K1 -
Sonde d'eau de condensation (facultative)-W
facultativefacultative
K2 -
MK -
Relais
Electrovanne bypass
1
NPE
11
L1
12
GV1 GV2
IS
T2
2
S1
01
J2-1
J2-3
J2-2
J16-7
J16-6
J5-10
J5-2
J5-12
J5-4
TT1
J5-11
J5-3
TT2.1
J13-2
J5-9
J5-1
J20-4
J20-3
J7-4
1NPEL 3 42
+
-
H1S2
13 14
J13-4
J13-3
J12
J18-2
J18-1
5 6
F2
6.3A
PE
PE
L
L1
Raccordement avec interrupter de
proximité
1
2
WS
N
N
3
4
3 4 5 6NPEL
F1
16A
2 41 3
J5-14
J5-6
TT2.2
J13-5
J13-6
VLV
L
N
-
HALL
+
PWM
1~
M
J9-2
J9-3
J9-4
J9-5
J9-6
J9-7
PE J9-1
109
J20-2
J20-1
7 8
W
J16-8
J16-1
87
PF
P
W
J16-4
11
14
K2
MK
A1
A2
K2
J6-2
J6-3
J2-4
A1
A2
K1

Related product manuals