EasyManua.ls Logo

Marvel 15iM - Dimensions for 15 Im Solid Door; Recommended Rough in Opening Dimensions for 15 Im Solid Door

Marvel 15iM
20 pages
Print Icon
To Next Page IconTo Next Page
To Next Page IconTo Next Page
To Previous Page IconTo Previous Page
To Previous Page IconTo Previous Page
Loading...
6
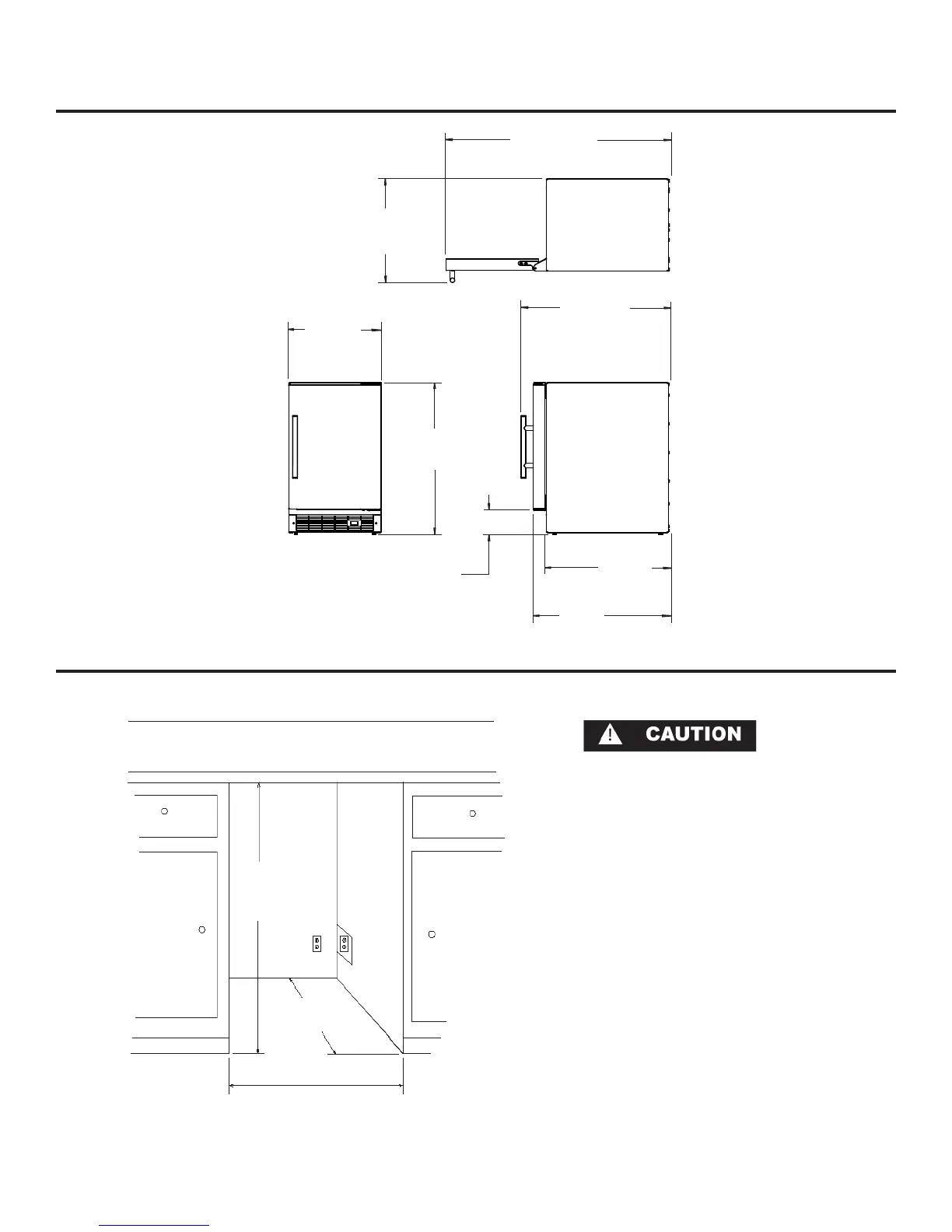
Recommended Rough in Opening Dimensions,15iM Solid Door
*24” (61 cm)
standard cabinet
depth
* Depth dimension may vary depending on
each individual installation.
24-1/2”
(62.23cm)
Electrical Requirements: 115 volts,
3.3 amps running max. 15 amp
dedicated circuit required. 3 prong
grounded receptacle required.
Power outlet can be located in the
back wall behind unit. Add 1” to
depth for thickness of plug, or recess
outlet 1” into the wall. Power outlet
can also be installed in adjacent
cabinetry with a cutout for routing of
power cord. Follow all local building
codes when installing electrical and
unit.
Product weight = 72 lbs. ( 32.7kg.)
15” (38.1cm)
DIMENSIONS FOR MODEL 15iM SOLID DOOR
14-7/8”
(37.8cm)
19-23/32”
(50.09cm)
21-25/32”
(55.32cm)
23-11/16”
(60.17cm)
35-5/8”
(90.47cm)
16-13/16”
(42.7cm)
3-15/16” to 4-5/8”
(10.01 to 25.43cm)
24-1/8” to 24-13/16”
(61.26 to 63.02cm)

Related product manuals