EasyManua.ls Logo

Marvel 30iMT - 30 iMAT Solid Overlay Door Dimensions

Marvel 30iMT
28 pages
Print Icon
To Next Page IconTo Next Page
To Next Page IconTo Next Page
To Previous Page IconTo Previous Page
To Previous Page IconTo Previous Page
Loading...
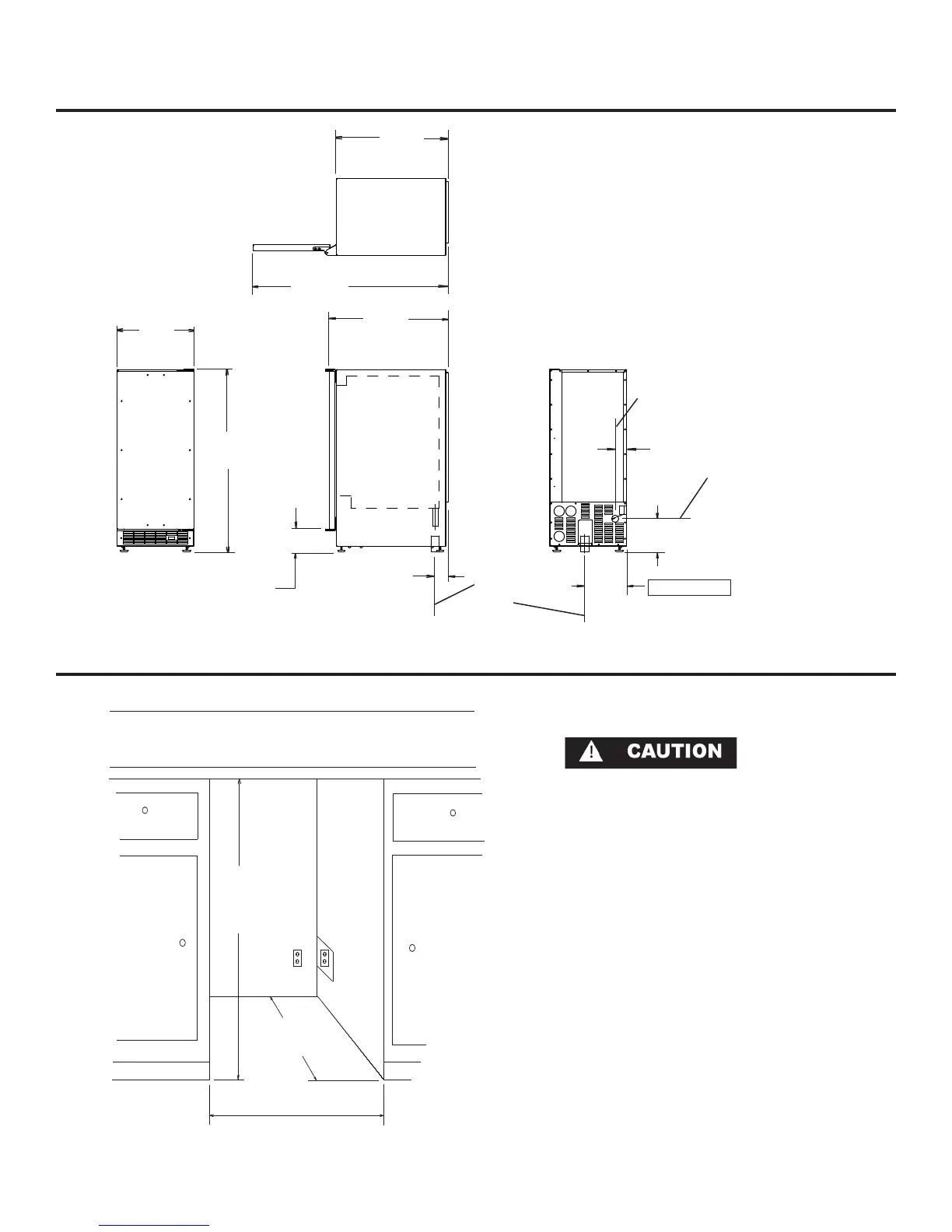
DIMENSIONS FOR 30iMAT SOLID OVERLAY DOOR
Rough In Opening Dimensions, for 30iMAT Solid Overlay Door
15” (38.1 cm)
*24” (61 cm)
standard cabinet
depth
* Depth dimension may vary depending on
each individual installation.
32-1/2”
(82.6 cm)
Electrical Requirements: 115 volts,
3 amps running max. 15 amp
dedicated circuit required. 3 prong
grounded receptacle required.
Power outlet can be located in the
back wall behind unit. Add 1” to
depth for thickness of plug, or recess
outlet 1” into the wall. Power outlet
can also be installed in adjacent
cabinetry with a cutout for routing of
power cord. Follow all local building
codes when installing electrical and
unit.
Product weight = 100 lbs. (45.5 kg.)
11
CL water supply
CL water supply
2” (5.08cm)
6” (15.24cm)
8” (20.32cm)
2” (5.08cm)
CL gravity
drain
37-1/16”
(95.4cm)
22-7/8”
(58.11cm)
21-1/2”
(54.61cm)
14-7/8”
(37.8cm)
3” to 3-1/4”
(7.62 to 8.26cm)
31-5/8” to 31-7/8”
(80.31 to 80.98cm)

Other manuals for Marvel 30iMT

Related product manuals