EasyManua.ls Logo

Maschio F07010128 - Dati Tecnici; Technical Data; Tekniska Data

Maschio F07010128
50 pages
Print Icon
To Next Page IconTo Next Page
To Next Page IconTo Next Page
To Previous Page IconTo Previous Page
To Previous Page IconTo Previous Page
Loading...
ENGLISH SVENSKA
4
ITALIANO
MOD.
AB
cm inch cm inch cm/inch KW HP cm nr. Kg/lbs
540 rpm rpm
540 254
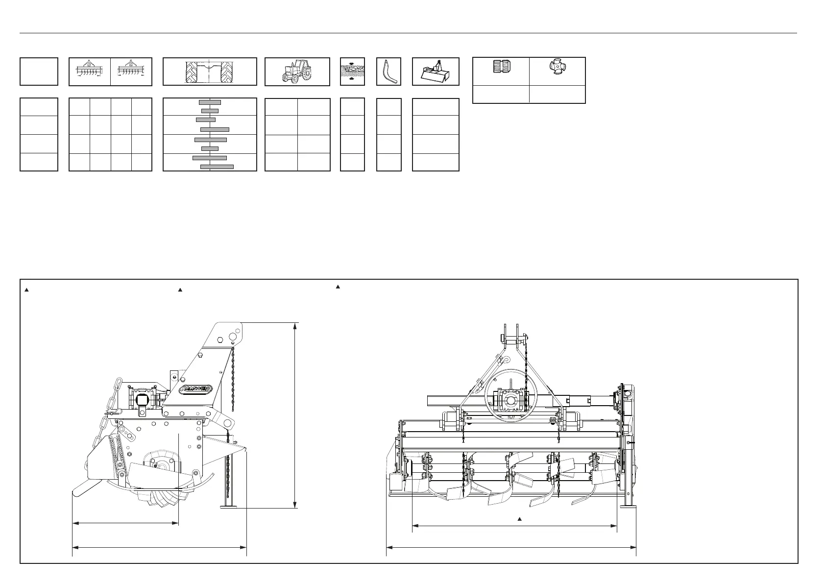
Larghezza di lavoro
S2 = Baricentro
Arbetsbredd
S2 = Tyngdpunkt
Fig. 1
LIVELLO SONORO
Rilevamenti della rumorosità a vuoto, (UNI
EN 1553/2001):
Livello di pressione acustica:
LpAm (A) dB .......................................81,1
Livello di potenza acustica:
LwA (A) dB..........................................96,1
NOISE LEVEL
No-load noise detection (UNI EN 1553,
2001):
Level of acoustic pressure:
LpAm (A) dB .......................................81,1
Level of acoustic power:
LwA (A) dB .........................................96,1
BULLERNIVÅ
Avläsningar av buller utan belastning (UNI
EN 1553/2001):
Ljudtrycksnivå:
LpAm (A) dB .......................................81,1
Ljudeffektsnivå:
LwA (A) dB..........................................96,1
1.1 DATI TECNICI 1.1 TECHNICAL DATA
1.1 TEKNISKA DATA
84
S2 = 40
(quota baricentrica)
80
B
A
7÷18 10÷25
11÷18 15÷25
13÷18 18÷25
15÷18,5 20÷25
42,5/16,7 42,5/16,7
27,5/14,8 57,5/18,7
52,5/20,7 52,5/20,7
32,5/16,7 72,5/24,7
57,5/22,7 57,5/22,7
27,5/14,8 87,5/30,6
62,5/24,7 62,5/24,7
32,5/16,7 92,5/32,6
16
16
16
16
143/315
155/341
170/374
185/407
L - 85
L - 105
L - 115
L - 125
85 33 97 38
105 41 117 46
115 45 127 50
125 49 137 54
16
20
20
24
Work width
S2 = Barycenter
S2

Table of Contents