EasyManua.ls Logo

Mastervolt Whisper 8

Mastervolt Whisper 8
32 pages
To Next Page IconTo Next Page
To Next Page IconTo Next Page
To Previous Page IconTo Previous Page
To Previous Page IconTo Previous Page
Loading...
INSTALLATION
US / WHISPER 6/8/11 / July 2009 / Copyright © 2009 Mastervolt 7
1.5.2 Cooling
Intercooling is based on a raw water pump, heat
exchanger and water-injected exhaust. Cooling liquid in
the internal cooling system is cooled in a heatexchanger
by outboard water (raw water or seawater). After the raw
water is warmed up in the heatexchanger it is dumped
overboard by injecting it in the exhaust.
The generating set should have its own sea water (coolant
water) inlet and should not be connected to any other
engine systems. A properly installed cooling system is
critical to keep engine temperatures within an acceptable
range. Ensure that the installation complies to the
following installation instructions.
1 THE INTERNAL COOLING SYSTEM
The internal cooling system should be filled with cooling
liquid. (Refer to the users manual 2.5.12) When the engine
becomes hot the liquid expands and the system is
pressurised. After the pressure becomes too high the
release valve in the filling cap on the manifold opens and
the expanding liquid is pressed into the expansion tank
that is in the delivery. Also the air in the system that is
collected at the top of the manifold is released in this way.
When the liquid cools down there will be under-pressure.
Another valve opens and the liquid is sucked into the
manifold again. This system works only when there is
enough liquid initially. This has to be checked when
commissioning the generator set. By filling up the
expansion tank when necessary there will always be
enough liquid in the system. The hose that is in the
delivery has to be connected to the connection on the side
of the filling cap. This hose is made of heat resistant
plastic and is not sensitive for kinks.
The hose goes through a hole that has to be drilled in the
lower part of the canopy close to the place where the tank
is mounted.
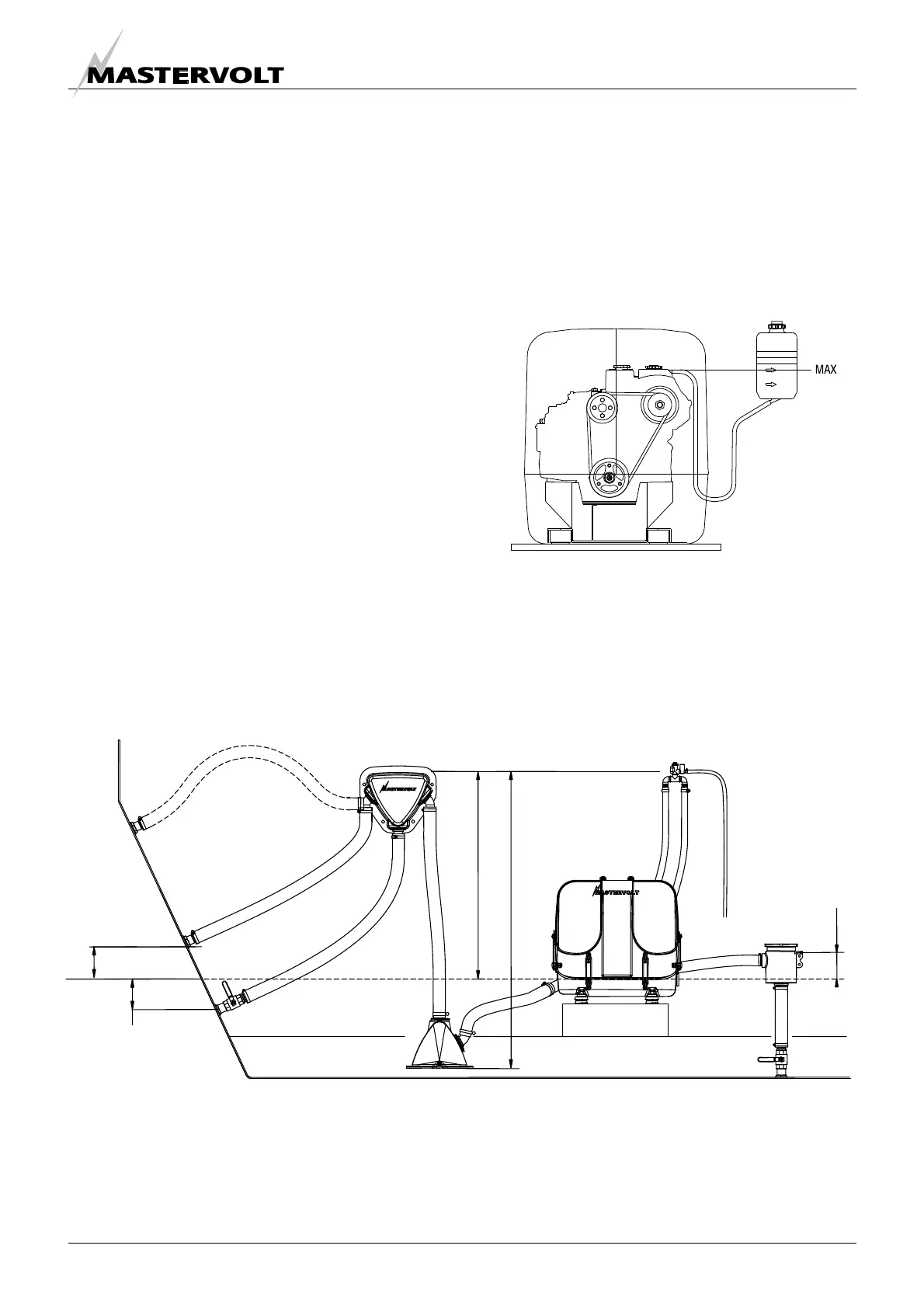
See figure 5. The tank has to be placed close to the
generator. When it is mounted above the top of the
manifold the liquid in the tank will be drained when the cap
on the manifold is taken off. When keel cooling or radiator
cooling is applied the system will not be pressurised. A
Afb. 4a.
Fig 5.
1 Water level 5 Air vent;
2 Water/exhaust separator 6 Water strainer;
3 Seacock 7 Seacock.
4 Waterlock
Fig. 6.
MAX. 10CM (4")
MIN. 60CM (24")
MAX. 150CM (60")
MIN. 3CM (1,2")
1
5
6
7
2
3
4
5CM (2")

Other manuals for Mastervolt Whisper 8

Related product manuals