EasyManua.ls Logo

Maytag MLE24PD - Page 23

Maytag MLE24PD
150 pages
Print Icon
To Next Page IconTo Next Page
To Next Page IconTo Next Page
To Previous Page IconTo Previous Page
To Previous Page IconTo Previous Page
Loading...
2-3
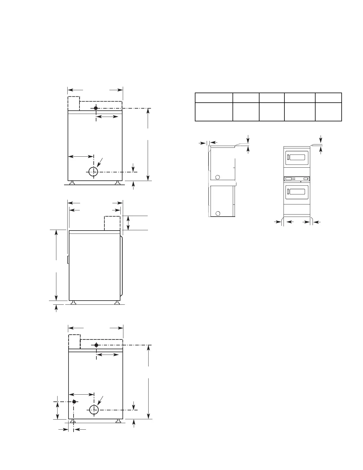
Single Load Dryer Dimensions
686 mm (27”)
686 mm (27")
892 mm
(35 1/8”)
343 mm
(13 1/2”)
ELECTRIC
EXHAUST
73 mm
(2 7/8”)
349 mm
(13 3/4”)
BACK VIEW
102 mm (4")
dia.
25 mm
(1")
200 mm (7 7/8”)
S ID E VIE W
889 mm
(35")
673 mm (26 1/2”)
743 mm (29 1/4”)
ELECTRIC DRYER
Stack Dryer Minimum Installation
Clearances
Back Sides Top Front
Recessed
51 mm
(2”)
0 mm
(0”)
305 mm
(12”)
---
Recessed Recessed
side view front view
Additional clearances for wall, door and
oor moldings may be required or if
external exhaust elbow is used.
51 mm (2")
0 mm (0")
305 mm
(12")
0" (0 mm)
0"
(0 mm)

Table of Contents