EasyManua.ls Logo

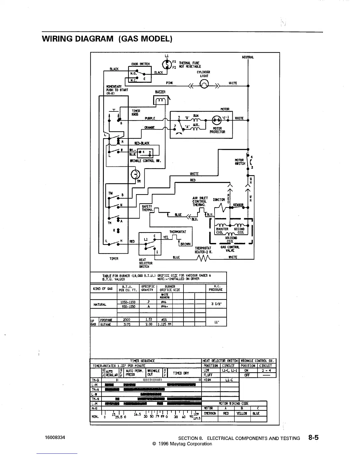
Maytag Performa PYG3200 - Wiring Diagram (Gas Model)

Maytag Performa PYG3200
88 pages
Print Icon
To Next Page IconTo Next Page
To Next Page IconTo Next Page
To Previous Page IconTo Previous Page
To Previous Page IconTo Previous Page
Loading...

Table of Contents

Related product manuals