EasyManua.ls Logo

MBM FGMD107SC - FGMD107;FGMD107 SC Installation Diagrams

MBM FGMD107SC
31 pages
Print Icon
To Next Page IconTo Next Page
To Next Page IconTo Next Page
To Previous Page IconTo Previous Page
To Previous Page IconTo Previous Page
Loading...
- 6 -
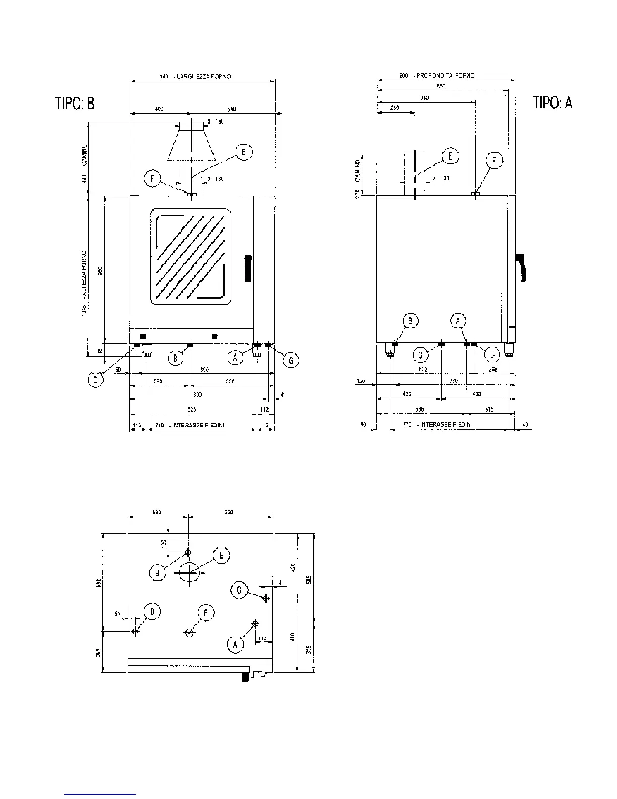
DIRECT “COMBINED” GAS OVEN FGMD107/FGMD107SC
B) Softened water inlet G 3/4”
D) Water outlet Ø 40 mm
F) Vent pipe Ø 50 mm
G) Power supply cable input
A) Gas connection G 3/4”
E) Chamber flue Ø 130 mm

Table of Contents

Related product manuals