EasyManua.ls Logo

McCall MCCR1-S - Page 17

McCall MCCR1-S
28 pages
Print Icon
To Next Page IconTo Next Page
To Next Page IconTo Next Page
To Previous Page IconTo Previous Page
To Previous Page IconTo Previous Page
Loading...
17
McCall
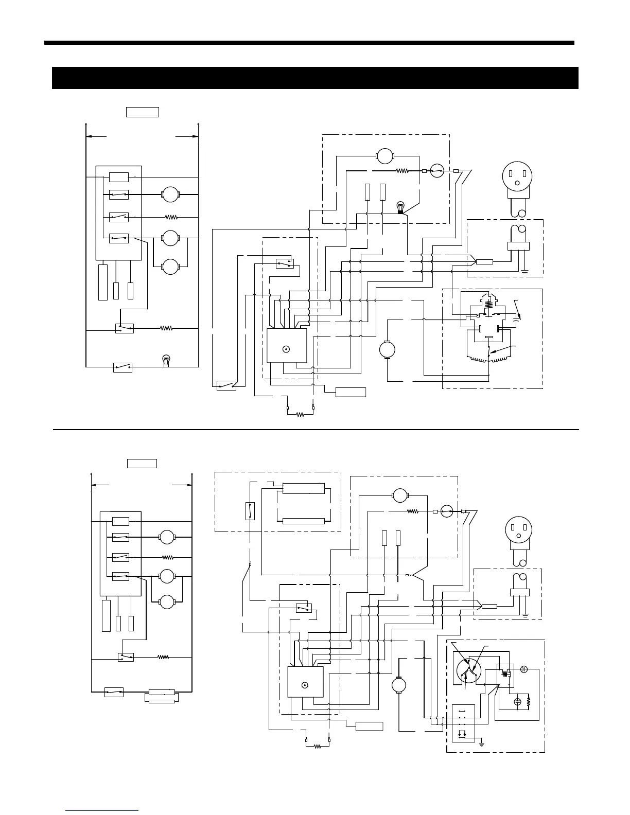
Freezer Wiring Diagrams
,).%6/,4!'%

3%%.!-%0,!4%&/2-!8)-5-
&53%3):%
#/-02%33/2
4%-0%2!452%
#/.42/,
3%.3/2
)&53%$
,%$$)30,!9
%6!0#/),
,
#!").%4!)2
3%.3/2
.
,

5.)43(/7.7)4(#/-02%33/2
-
.
"/8
#/.42/,
(%!4%2
$//2&2!-%%.%2'93!6%2
37)4#(
25..).'!.$$//23#,/3%$
4()35.)4-534"%'2/5.$%$
53%#/00%2#/.$5#4/23/.,9
%.%2'93!6%2
'2%9
37)4#(
$//2
",+
().'%
$//2
2%$

#/.42/,
4%-0%2!452%
(
",+
,#
,
7
.
&
)&53%$
,%$$)30,!9
-
37)4#(
34!24
7).$).'


&!.
#/.$%.3%2
",+
7).$).'
25.
342)0%3
7)4(",5%
%6!0/2!4/2(/53).'
-/4/2
%6!0&!.
3%.3/2
#!").%4!)2
7
7
%6!0#/),
3%.3/2
-
,)'(4
).#!.$%3#%.4
7
",+
",+
7
7
7

34!24
#!0!#)4/2
0/7%2"/8
30,)#%
.54
7)2%
0,5'
#/-02%33/2
",+
&2!-%(%!4%23
./4%3
#/.42/,
#)2#5)4
2%,!9
#/-02%33/2
,)'(4
).#!.$%3#%.4

0
()'(4%-0
,)-)4
37)4#(
(%!4%2
$%&2/34
9
",5%
37)4#(
7
7
7).$).'
02/4%#4/2


&!.2%,!9
&
-
(%!4%22%,!9
(
%6!0/2!4/2&!.
$%&2/34(%!4%2
#
#/.$%.3/2&!.
-
MCCF1 - Solid Doors
,%$$)30,!9
#/.$%.3/2&!.
$%&2/34(%!4%2
%6!0/2!4/2&!.
$//2&2!-%
,).%6/,4!'%

3%%.!-%0,!4%&/2-!8)-5-
&53%3):%
%.%2'93!6%2
37)4#(
(%!4%22%,!9

#/-02%33/2
2%,!9
#/.42/,
4%-0%2!452%
,%$$)30,!9
)&53%$
,
%6!0#/),
3%.3/2
3%.3/2
#!").%4!)2
#
&!.2%,!9
#)2#5)4
#/.42/,
(
&
.
,

(%!4%2
&2!-%(%!4%23
,
4%-0%2!452%
#/.42/,

",+
# ,
( .
&
7
7
7
)&53%$
53%#/00%2#/.$5#4/23/.,9
4()35.)4-534"%'2/5.$%$
25..).'!.$$//23#,/3%$
5.)43(/7.7)4(#/-02%33/2
#/-02%33/2
-
-
-
0
#/.42/,
"/8
.
./4%3
37)4#(
%.%2'93!6%2
'2%9
",5%
#!").%4!)2
",+
",+
#/.$%.3%2
-
&!.
#/-02%33/2
%6!0&!.
$%&2/34
",+
",+
7)4(",5%
342)0%3
7
7
7
-
-/4/2
%6!0#/),
3%.3/2
3%.3/2
9
(%!4%2
7
7
37)4#(
,)-)4
()'(4%-0
7
%6!0/2!4/2(/53).'
0/7%2"/8
30,)#%
7)2%
.54
0,5'
37)4#(
&,5/2%3#%.4
,!-0
&,5/2%3#%.4,!-0!33%-",9
&,5/2%3#%.4,)'(4
&,5/2%3#%.4,!-0
",+
2%$
"!,,!34
",5%
7
,!-037)4#(
&,5/2%3#%.4
,!-0"!,,!34
&,5/2%3#%.4
,!-0
&,5/2%3#%.4
34!24#!0!#)4/2
,
,

.
.
3
2

25.#!0!#)4/2
#
34!24
7).$).'
-!).7).$).'
-/4/2
02/4%#4/2
",+
",+
MCCF1 - Glass Doors

Related product manuals