EasyManua.ls Logo

McCall MCCR1-S - Page 18

McCall MCCR1-S
28 pages
Print Icon
To Next Page IconTo Next Page
To Next Page IconTo Next Page
To Previous Page IconTo Previous Page
To Previous Page IconTo Previous Page
Loading...
18
McCall Series I Reach-In Manual
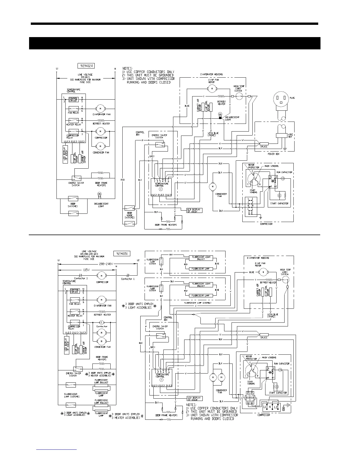
Freezer Wiring Diagrams
PDF created with pdfFactory trial version www.pdffactory.com
MCCF2 - Solid Doors
MCCF2, MCCF3 - Glass Doors

Related product manuals