EasyManua.ls Logo

McQuay MCI16060CCU216A

McQuay MCI16060CCU216A
83 pages
To Next Page IconTo Next Page
To Next Page IconTo Next Page
To Previous Page IconTo Previous Page
To Previous Page IconTo Previous Page
Loading...
R410A 60Hz 16 SEER Universal Outdoor Series Technical Manual
42
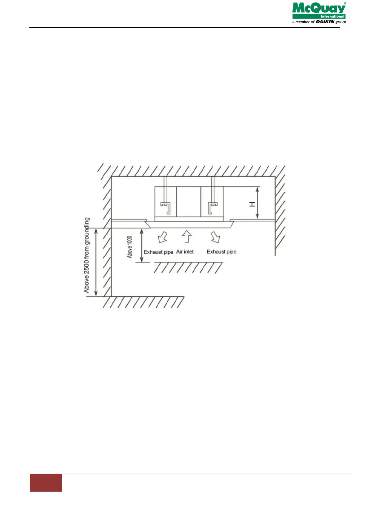
1.4. Service space
The indoor unit should be installed in a location that meets the following requirements:
(1)There is enough interspace for installation and maintenance.
(2)The ceiling is horizontal, and its structure can endure the weight of the indoor unit.
(3)The outlet and the inlet are not impeded, and the influence of external air is the least.
(4)The air flow can reach throughout the room.
(5)The connecting pipe and drainpipe could be extracted out easily.
(6)There is no direct radiation from heaters.

Related product manuals