EasyManua.ls Logo

McQuay MDB100B - Wiring Diagrams; Cooling Wiring Diagrams; MDB 075 B - MMC 075 C Cooling Wiring Diagram

McQuay MDB100B
163 pages
Print Icon
To Next Page IconTo Next Page
To Next Page IconTo Next Page
To Previous Page IconTo Previous Page
To Previous Page IconTo Previous Page
Loading...
61
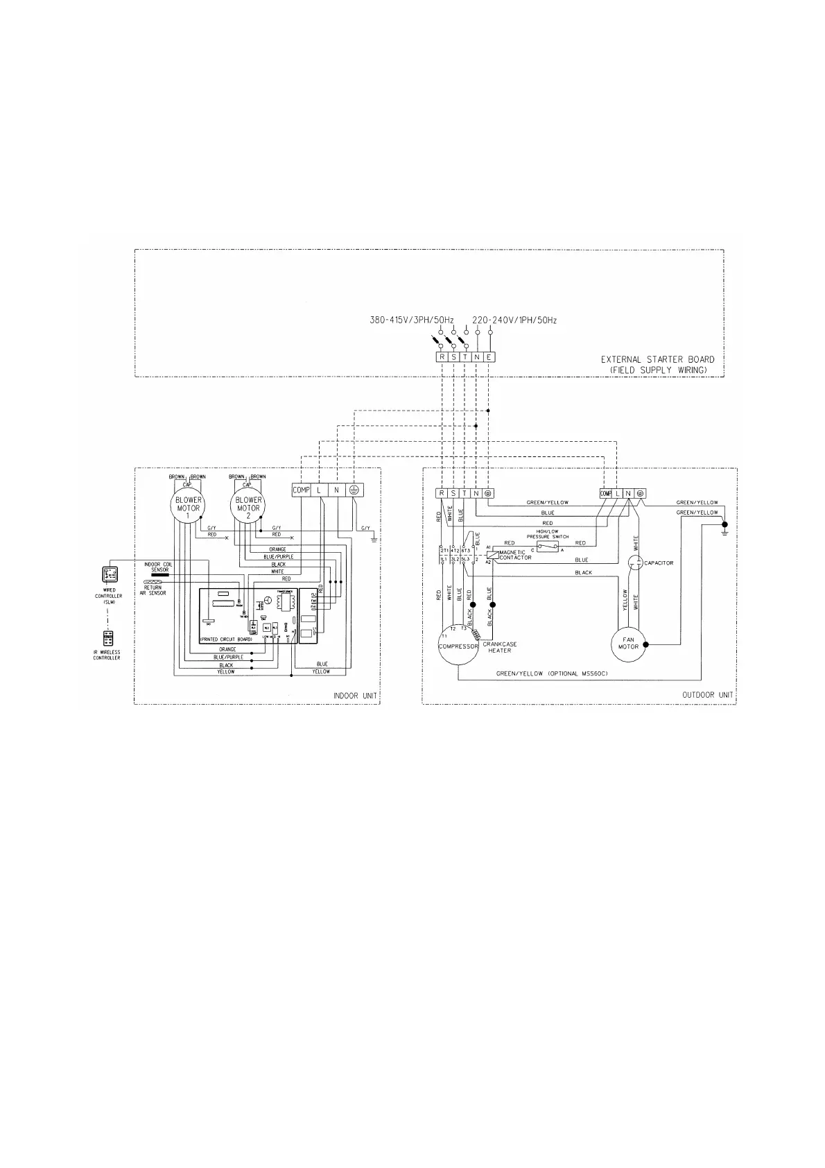
Wiring Diagrams (Cooling)
MODEL : MDB 075B – MMC 075C
Important note :
A manual reset circuit must be provided at the
field supplied external starter board for all
protective devices.
Note : 1) For export spec.
2) With U1.4 SLM

Related product manuals