EasyManua.ls Logo

McQuay MVCU 025 A - Ceiling Unit Wiring Diagrams

McQuay MVCU 025 A
43 pages
Print Icon
To Next Page IconTo Next Page
To Next Page IconTo Next Page
To Previous Page IconTo Previous Page
To Previous Page IconTo Previous Page
Loading...
14
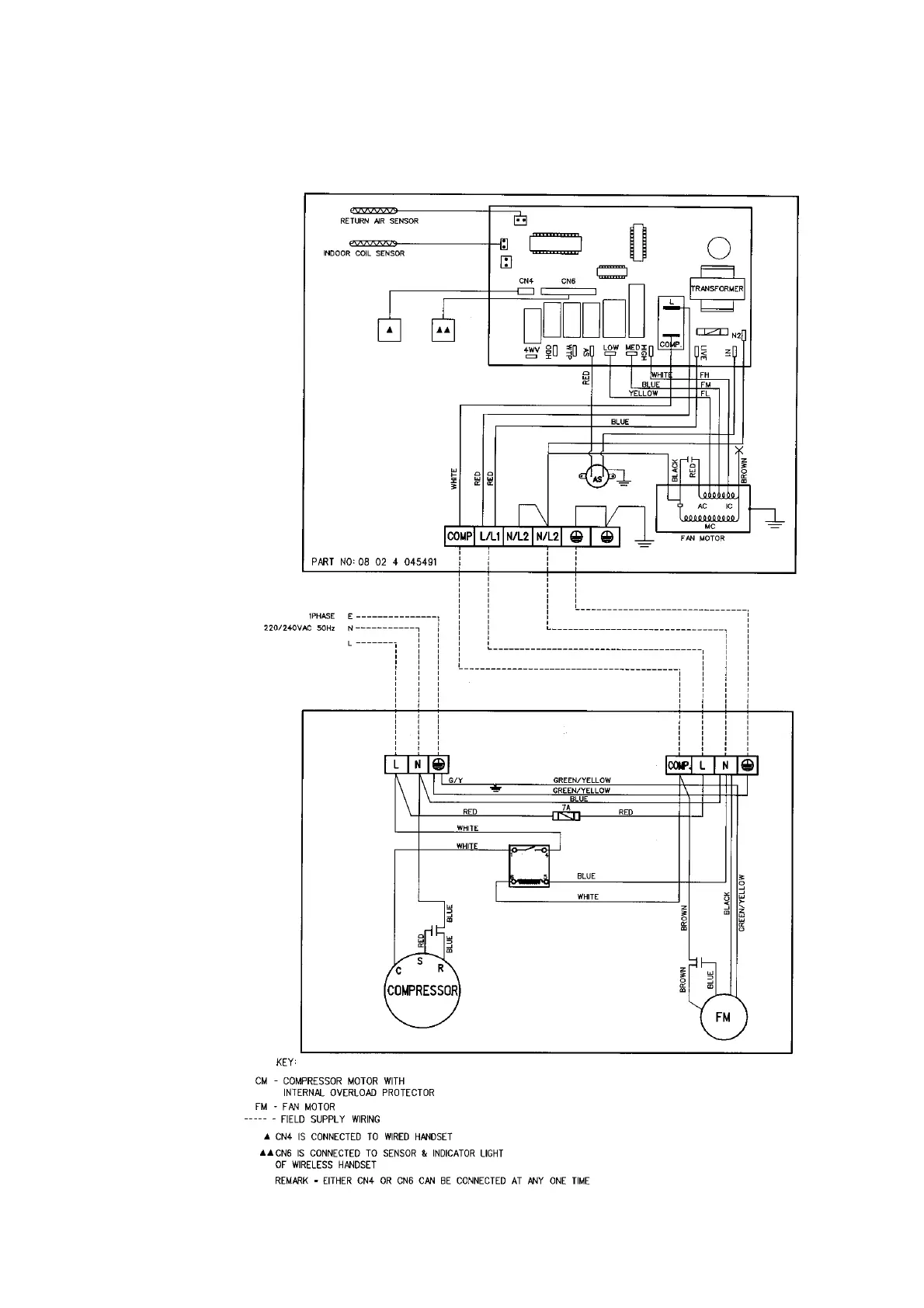
CEILING CONVERTIBLE
INDOOR UNIT
MODEL : MCM 025D
OUTDOOR UNIT
MODEL : MVCU 025A

Related product manuals