EasyManua.ls Logo

McQuay SWP 055 - Control Center

McQuay SWP 055
44 pages
To Next Page IconTo Next Page
To Next Page IconTo Next Page
To Previous Page IconTo Previous Page
To Previous Page IconTo Previous Page
Loading...
IM708 17
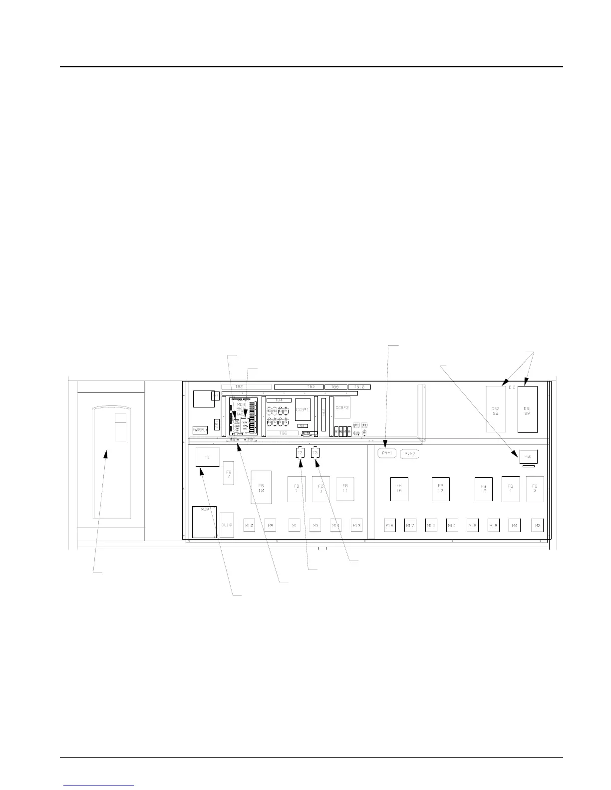
Control Center
All electrical controls are enclosed in a central control center
located at the front of the unit. The control center is divided
into two separate compartments, high and low voltage. The
lower compartment houses the high voltage components and
can be accessed through the “Electrical Access" panels indi-
cated on the dimensional drawing. Behind these access pan-
els are hinged dead front panels for further operator safety.
High voltage components include:
1. Fan Motor Contactor, M30
2. Fan Motor Overload, OL10
3. Fan Motor Fuse, FB10
4. Compressor Contactors, M1-M6
5. Compressor Fuses, FB1-FB6
6. Electric Heat Contactors, M11-M16
7. Transformer, T1, T2, T3
8. Disconnect Switch, DS1-DS2
9. Power Block, PB1-PB2
Figure 19. Typical Control Center Layout
High and Low Voltage Compartments
If the optional disconnect switch is provided, the switch han-
dle is visible and accessible without removing any safety or
access panels.
Low voltage components are located in the upper left com-
partment, and include:
1. MicroTech II Main Control Board, MCB
2. Duct Static Pressure Sensor, SPS1
3. Optional 2nd Duct Static Pressure Sensor, SPS2
4. Optional BACNet Ethernet Communication Card,
5. Optional BACNet MSTP Communication Card,
6. Optional LonMark Communication Card,
7. Compressor Control Board, CCB #1
8. Compressor Control Board, CCB #2
(6 compressor units only)
Located on the face of the unit is the interactive MicroTech
II keypad/display, unit switch, system indicator light and
power indicator.
Note: IM710 has additional layout of the control center.
LonMark Communication Card
BACNet Communication Card
Disconnect Switch
(Optional)
Power Block
Phase Voltage
Monitor
Transformer, Control Output, 24V, T3
Transformer, Control Output, 24V, T2
Transformer, Main Control, 115V, T1
Duct Static Pressure Sensor
Adjustable Frequency
Drive (Optional)

Table of Contents

Related product manuals