EasyManua.ls Logo

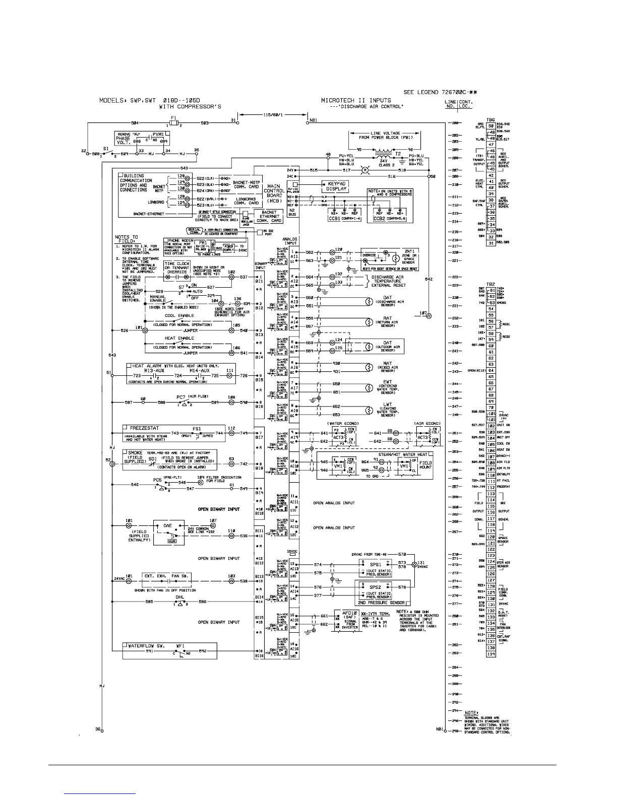
McQuay SWP 055 - Figure 21. Input Schematic, Discharge Air Control (DAC)

McQuay SWP 055
44 pages
To Next Page IconTo Next Page
To Next Page IconTo Next Page
To Previous Page IconTo Previous Page
To Previous Page IconTo Previous Page
Loading...
20 IM708
Figure 21. Input Schematic, Discharge Air Control (DAC)

Table of Contents

Related product manuals