EasyManua.ls Logo

McQuay SWP 055 - Figure 25. Output Schematic, Compressor Control

McQuay SWP 055
44 pages
To Next Page IconTo Next Page
To Next Page IconTo Next Page
To Previous Page IconTo Previous Page
To Previous Page IconTo Previous Page
Loading...
24 IM708
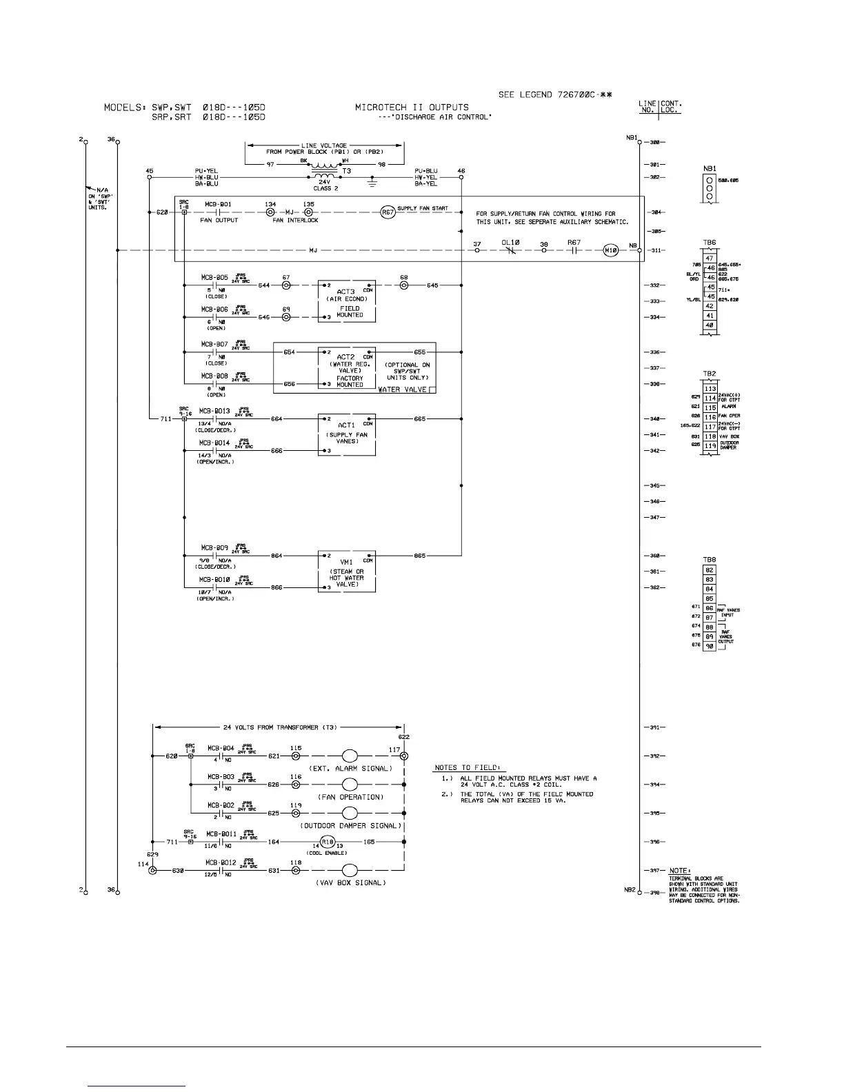
Figure 25. Output Schematic, Actuator Control

Table of Contents

Related product manuals