EasyManua.ls Logo

Meritor 18X - Page 68

Default Icon
84 pages
Print Icon
To Next Page IconTo Next Page
To Next Page IconTo Next Page
To Previous Page IconTo Previous Page
To Previous Page IconTo Previous Page
Loading...
68 Meritor Differential Carrier 18X
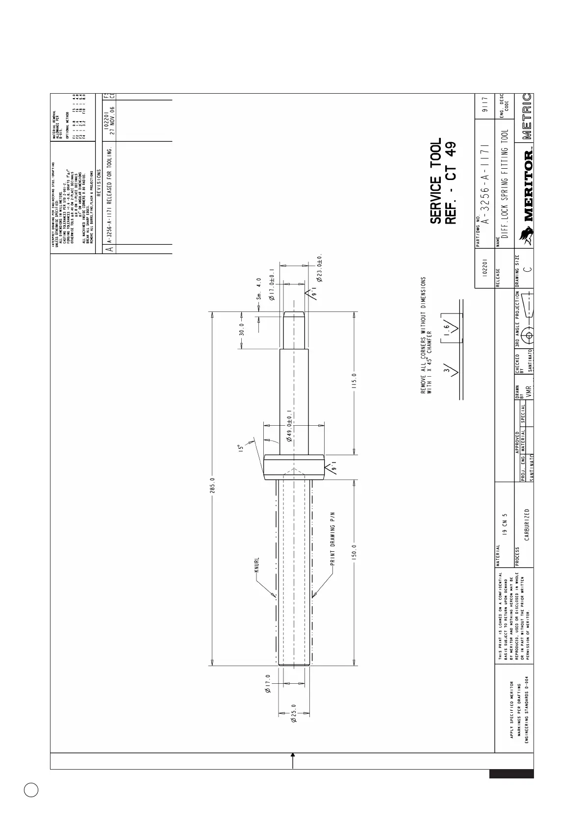
Fig. 8.9
8 Service Tools
MST4709 - CT49 Diff. Lock Spring Fitting Tool