EasyManua.ls Logo

Midea 18K - Page 22

Midea 18K
54 pages
Print Icon
To Next Page IconTo Next Page
To Next Page IconTo Next Page
To Previous Page IconTo Previous Page
To Previous Page IconTo Previous Page
Loading...
Page 22
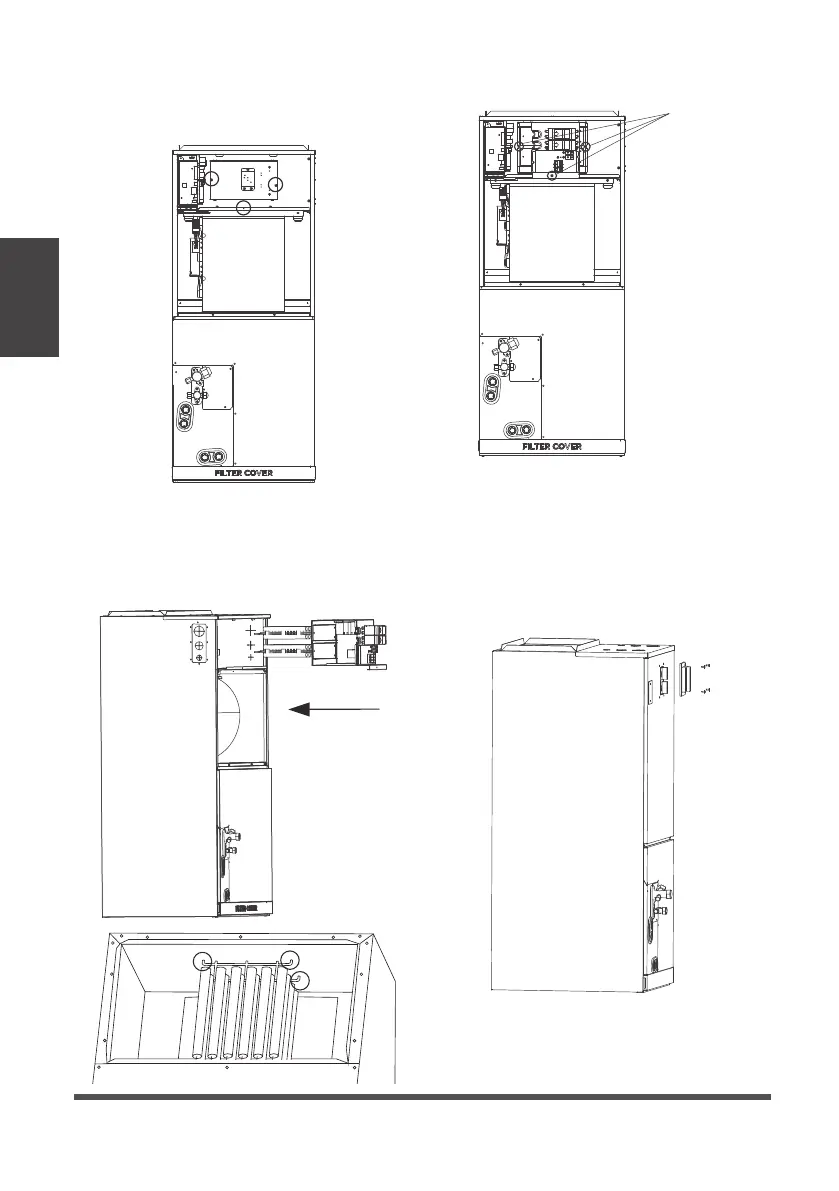
2. Remove the terminal block and power
wires, loosen the screws, and remove
the electric auxiliary heating cover.
3. Install the electric auxiliary heating
assembly into the chassis shell from
the front, and note that the support
assembly must lock into the support
holes in the back of the cabinet.
4. Tighten the mounting screws.
5. Wiring according to the wiring
nameplate.
6. Apply the wiring diagram to the inside
cover when wiring is completed for
future reference and maintenance.
7. Install the upper cover.
8. Install silicone breaker cover.
screws
9. After installing the electric auxiliary
heat module, apply the circuit breaker
label near the silicone breaker cover
that was just applied.
Indoor Unit
Installation

Related product manuals