EasyManua.ls Logo

Midea Aqua Tempo Super MC-SP25-RN1L

Midea Aqua Tempo Super MC-SP25-RN1L
153 pages
To Next Page IconTo Next Page
To Next Page IconTo Next Page
To Previous Page IconTo Previous Page
To Previous Page IconTo Previous Page
Loading...
Aqua Tempo Super Series air cooled scroll chiller unit (50Hz) MCAC-ATSM-201606
33
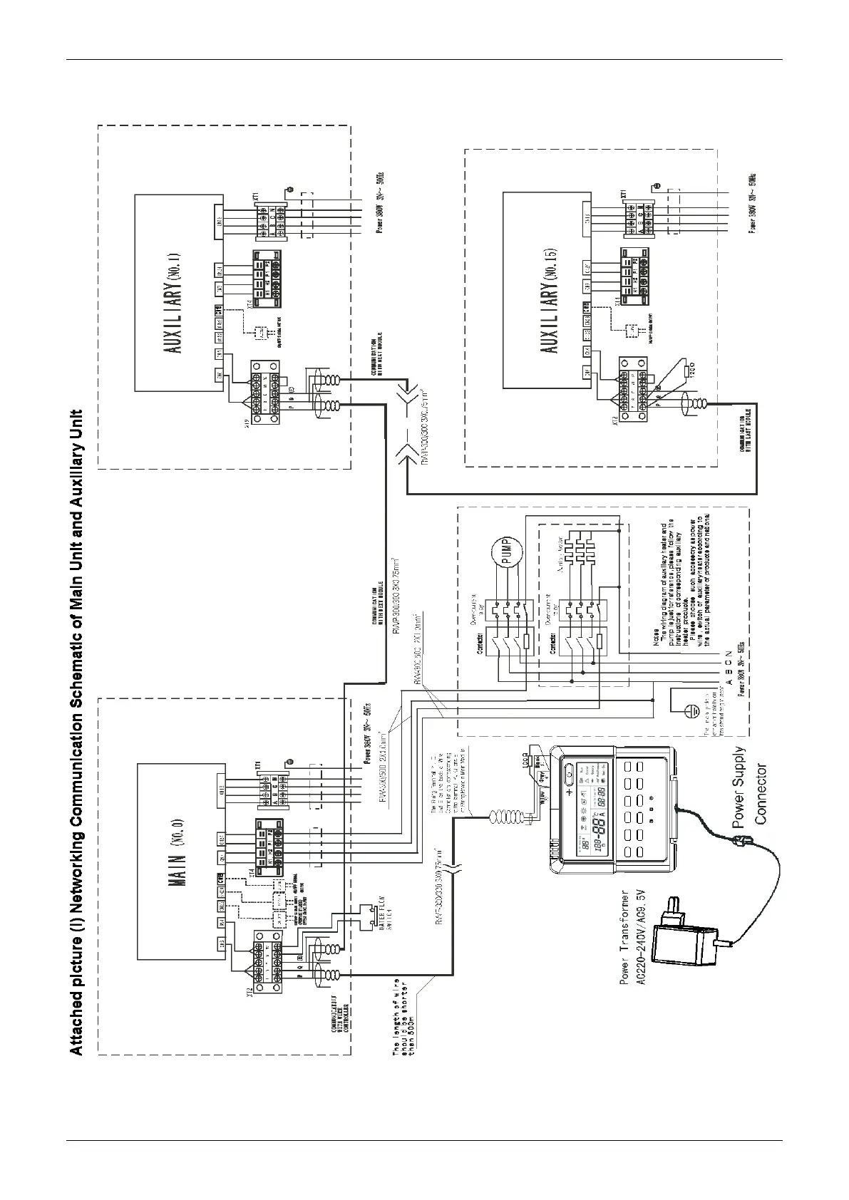
8.2 Networking Communication Schematic
SS series
MC-SS35/RN1L/ MC-SS65/RN1L/ MC-SS80/RN1L/ MC-SS130/RN1L

Table of Contents

Related product manuals