EasyManua.ls Logo

Midea Aqua Tempo Super MC-SS130/RN1L - Unit Dimensions; SS Series Unit Dimensions

Midea Aqua Tempo Super MC-SS130/RN1L
153 pages
Print Icon
To Next Page IconTo Next Page
To Next Page IconTo Next Page
To Previous Page IconTo Previous Page
To Previous Page IconTo Previous Page
Loading...
Aqua Tempo Super Series air cooled scroll chiller unit (50Hz) MCAC-ATSM-201606
17
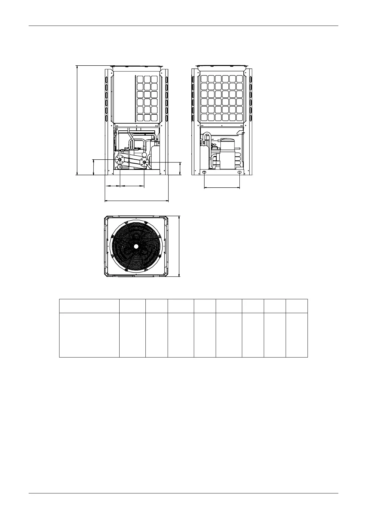
6Dimensions
SS series
25/35kW module
A
C
E
D
F
G
Unit: mm
Model
A
B
C
D
E
F
G
H
MC-SS25/RN1L
MC-SS35/RN1L
1020
980
1770
237
400
250
210
570
H
B

Table of Contents

Related product manuals