EasyManua.ls Logo

Midea Aqua Tempo Super MC-SS130/RN1L - SP Series Unit Dimensions

Midea Aqua Tempo Super MC-SS130/RN1L
153 pages
Print Icon
To Next Page IconTo Next Page
To Next Page IconTo Next Page
To Previous Page IconTo Previous Page
To Previous Page IconTo Previous Page
Loading...
MCAC-ATSM-201606 Aqua Tempo Super Series air cooled scroll chiller unit (50Hz)
20
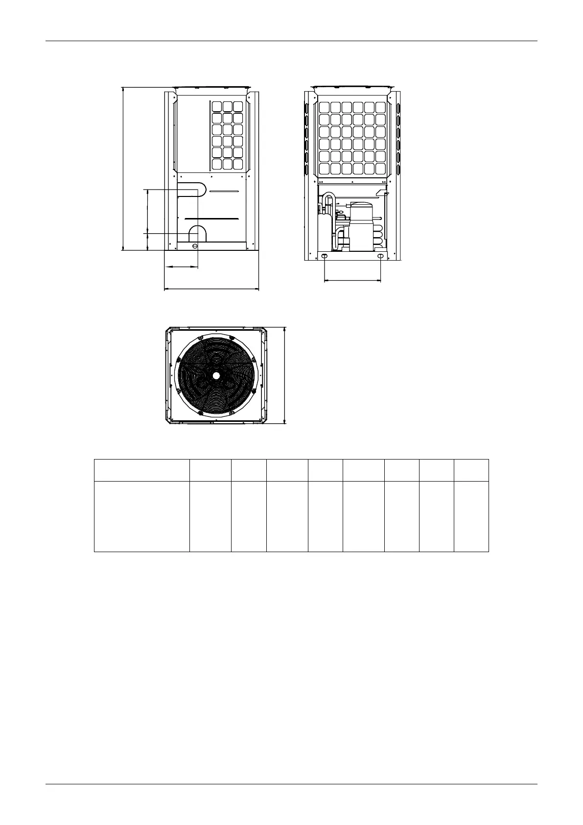
SP series
25/35kW module
Front view
A
C
E
D
F
Front view Side view
Top view
Unit: mm
Model
A
B
C
D
E
F
-
H
MC-SP25-RN1L
MC-SP25M-RN1L
MC-SP35-RN1L
MC-SP35M-RN1L
1020
980
1770
363
181
481
-
880
H
B

Table of Contents

Related product manuals