EasyManua.ls Logo

Midea Aqua Tempo Super MC-SS35/RN1L

Midea Aqua Tempo Super MC-SS35/RN1L
153 pages
To Next Page IconTo Next Page
To Next Page IconTo Next Page
To Previous Page IconTo Previous Page
To Previous Page IconTo Previous Page
Loading...
MCAC-ATSM-201606 Aqua Tempo Super Series air cooled scroll chiller unit (50Hz)
20
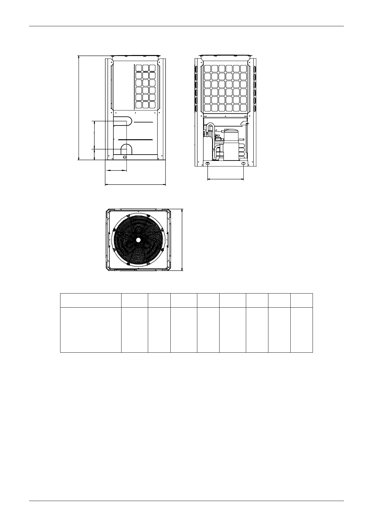
SP series
25/35kW module
Front view
A
C
E
D
F
Front view Side view
Top view
Unit: mm
Model
A
B
C
D
E
F
-
H
MC-SP25-RN1L
MC-SP25M-RN1L
MC-SP35-RN1L
MC-SP35M-RN1L
1020
980
1770
363
181
481
-
880
H
B

Table of Contents

Related product manuals