EasyManua.ls Logo

Midea CLIVET IM1-XY53M - 6 Allegati; Schemi Elettrici Unità Interna

Midea CLIVET IM1-XY53M
108 pages
Go to English
Print Icon
To Next Page IconTo Next Page
To Next Page IconTo Next Page
To Previous Page IconTo Previous Page
To Previous Page IconTo Previous Page
Loading...
31
Allegati
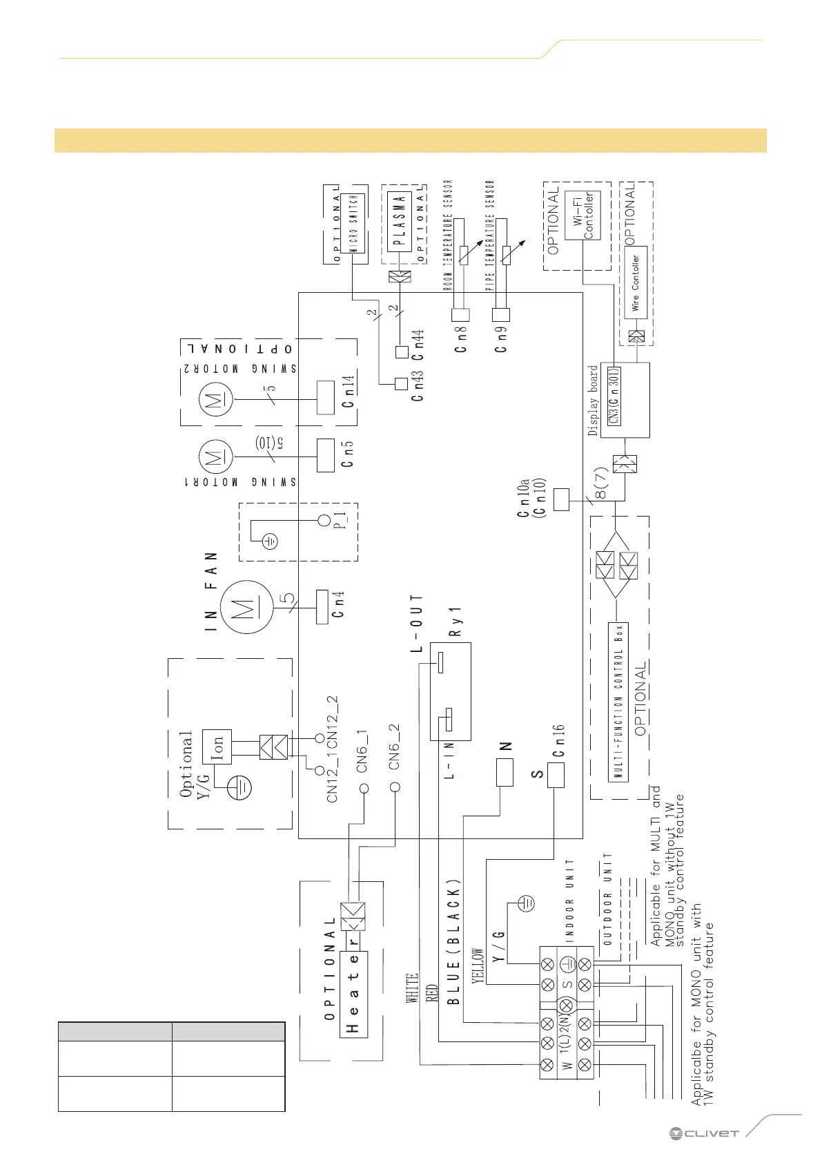
6 ALLEGATI
6.1 Schemi elettrici unità interna
Cn11(CN1)
SERIE GRANDEZZA
IM1-XY
20M - 27M - 35M
53M - 70M
IL2-XY
20M - 27M - 35M
53M - 70M

Table of Contents

Related product manuals