EasyManua.ls Logo

Midea COMPACT HS-57LN - Product Configuration and Dimension; Main Parts and Their Names; External Dimension

Midea COMPACT HS-57LN
34 pages
Print Icon
To Next Page IconTo Next Page
To Next Page IconTo Next Page
To Previous Page IconTo Previous Page
To Previous Page IconTo Previous Page
Loading...
Service Manual_2018-V2.0
13
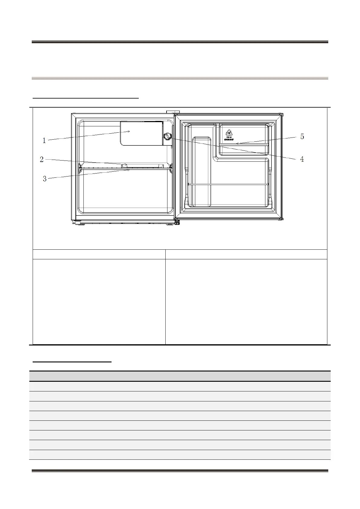
5. Product configuration and dimension
5.1 Main parts and their names
.
(The picture is only for reference, and specific appearance and configuration are subject to the real
product)
Freezer chamber
Refrigerator chamber
None
1Wicket
2Defrosting pan
3Steel wire shelf
4Temperature control mdodule
5Bottle frame in refrigerating chamber
5.2 External dimension
Description
Code
Size (mm)
Height to Top of Case
A
492
Width
B
472
Depth w/Cabinet
C
390
Depth w/Door
D
450
Depth w/Handle
E
450
Depth (Door open 90 deg. w)
F
877
Depth (Door open 135 deg. w)
G
810
Width (Door open 135 deg. w)
H
790

Related product manuals