EasyManua.ls Logo

Midea MCH-90B68AT - Arahan Pemasangan

Midea MCH-90B68AT
Print Icon
To Next Page IconTo Next Page
To Next Page IconTo Next Page
To Previous Page IconTo Previous Page
To Previous Page IconTo Previous Page
Loading...
Arahan Pemasangan
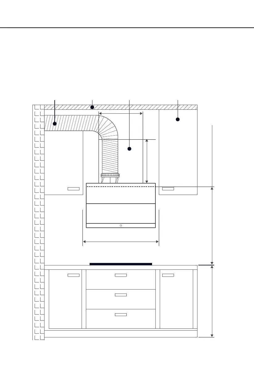
Menentukan tempat pemasangan
Hud dapur hendaklah dipasang secara melintang di bahagian atas
dapur gas. Gambarajah pemasangan adalah seperti berikut:
905~915
482
800~850
AlmariCerobong
Siling gantungPaip ekzos
430
Garis untuk pemasangan
780~850
6

Related product manuals