EasyManua.ls Logo

Midea MDV-D71Q4/N1-E - Compact Four-way Cassette Wiring Diagrams

Midea MDV-D71Q4/N1-E
105 pages
Print Icon
To Next Page IconTo Next Page
To Next Page IconTo Next Page
To Previous Page IconTo Previous Page
To Previous Page IconTo Previous Page
Loading...
Compact Four-way Cassette MCAC-VTSM-2017-01
49
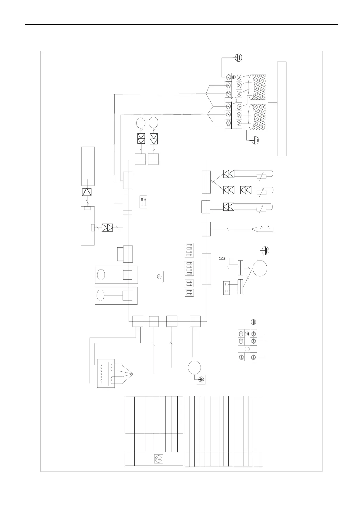
6. Wiring Diagrams
MDV-D15Q4/N1-A3 MDV-D22Q4/N1-A3 MDV-D28Q4/N1-A3 MDV-D36Q4/N1-A3 MDV-D45Q4/N1-A3
CN 1
CN3
CN2
CN4
CN5
CN7
CN6
CN 9
CN 14
CN 11
P MV
DM
FM
MA IN C ON TR OL B OA RD
WHITE
C S
2
3600W (1.2HP)
F
3
5600W (2.0HP)
4500W (1.7HP)
Code
Dial
switch
ENC1
0
1
Horsepower setting
Capacity
()Horsepower
2800W (1.0HP)
22 00 W( 0. 8H P)
I ND OO R U NIT P OW ER
Y/G
RED
BLUE
CN8
D IS PL AY B OA RD
TR
XS4
Xp4
XS6
XP6
XT1
CN10
XS5
XP5
GM
T2 B
T2
T1
XP9
XS9
XS7
XP7
WHITE BLACK
Y/G
WHITE
PULSE MOTOR
PMV
SWING MOTOR
INDOOR FAN MOTOR
WATER PUMP MOTOR
WATER LEVEL SWITCH
TRANSFORMER
OUTER PIPE TEMP.SENSOR
MIDDLE PIPE TEMP.SENSOR
CODE
DM
CS
GM
T2B
T2
TR
FM
TITLE
XT2
XT1
XS1-9
6-WAY TERMINAL
3-WAY TERMINAL
CONNECTOR
XP1-9
T1
ROOM TEMP. SENSOR
EXPANSIVE VALVE
FUNCTION OF SWITCH
CN17
TO CCM
COMM. BUS
WHITE
BLUE
BLACK
YELLOW
GRAY
TO O UT D OO R
CO MM . B US
XT2
TO WIRE
CONTROLLER
XS3
XP3
CAPACITOR
C
XP1
XS1
SW5
ENC1
XS2
XP2
Ple ase use 3 -core s hield ed wire ,and
con nect th e shiel ded lay er to the e arth
L
N
WIRING DIAGRAMING
P
Q
X
Y
E
Y /G
Y/G
20 2084 090 574
XS8
XP8
SW6
SW1
SW2
ALARM
ON/ OFF
CN20
CN16
CN13
SW7
YELLOW
4
1 5 0 0 W/ 1 7 0 0W
( 0 . 6 HP / 0 . 7 H P )
C

Related product manuals