EasyManua.ls Logo

Midea MDV-D71Q4/N1-E - Silent Four-way Cassette Service Spaces

Midea MDV-D71Q4/N1-E
105 pages
Print Icon
To Next Page IconTo Next Page
To Next Page IconTo Next Page
To Previous Page IconTo Previous Page
To Previous Page IconTo Previous Page
Loading...
Silent Four-way Cassette MCAC-VTSM-2017-01
87
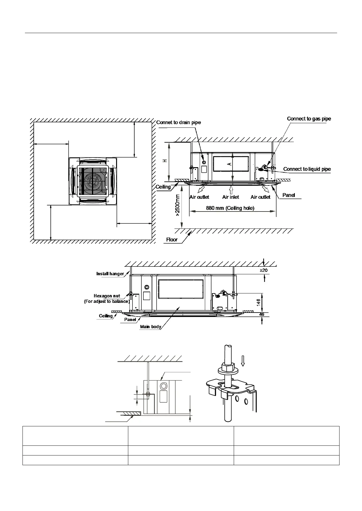
4. Service spaces
1) There is enough room for installation and maintenance.
2) The ceiling is horizontal, and its structure can endure the weight of the indoor unit.
3) The outlet and the inlet are not impeded, and the influence of external air is the least.
4) The air flow can reach throughout the room.
5) The connecting pipe and drainpipe could be extracted out easily.
6) There is no direct radiation from heaters.
Unit: mm
Model
A
mm
H
mm
8kW
230
More than 260
9kW
300
More than 330
>1000mm
>1000mm
>1000mm
>1000mm
L
1012mm
Main body of the unit
Ceiling

Related product manuals