EasyManua.ls Logo

Midea MGCSL-D30W/RN1

Midea MGCSL-D30W/RN1
174 pages
To Next Page IconTo Next Page
To Next Page IconTo Next Page
To Previous Page IconTo Previous Page
To Previous Page IconTo Previous Page
Loading...
MCAC-ATSM-2011-12 Air-cooled modular chiller unit 50Hz
45
65KW digital module(Only for MGB-D65W/RN1)
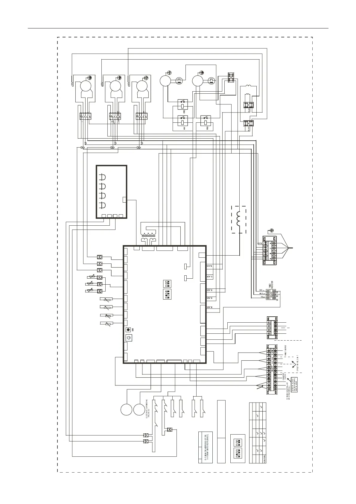
Attached picture (I) Electric Drawing of Main Unit and Auxiliary Unit
XP8
XP7
XS8
XS7
T
3
B
T
3
A
HEAT_A1
PMV(B)
QUERY
CN18(WHITE
POWER
CN20RED
TRANS IN
PWM
CN17
CN15WHITE)
CN9WH ITE
COMP.B2 COMP.A2
COMP.A1 S.V(A)
CN24
PUMP
CN16
ALARM
CN8(WHITE)
ANTI-FREEZING
CN3(YELLOW)
PH_PRO
CN2(RED)
PMV(B)
COM(I)
COM(O)
CN6
CN27 CN10 CN22 CN32
CN14
PMV(A)
CN11RED
POWER OUT
FANA
CN30
FANB
CN31
(YELLOW)
(RED)
COMP B
2
1
5
21
3
6
22
4
T3
A1
A2
T2
T1
HEAT_B
ORANGE
H2 P1 P2H1
XT4
S1
SW3
ICOMP-B2
XT5
XT6
R
T
6
R
T
7
CN23(WHITE)
ON/OFF
RT4
RT5
COMP A1
2
5
21
3
6
22
4
T3
A1
A2
T2
T1
FAN B
(U)
(V)
(W)
(U)
(V)
(W)
Y&G
4-WAY TERMINAL
XT1
POWER IN
Y&G
S1
16-WAY DAIL SWITCH FUNCTION
DAIL SWITCH
ADDRESS
BLUE
WHITE
RED
RED
WHITE
BLUE
BLACK
4-WAY
TERMINAL
HEAT
PUMP
BLUEBLUEBLUE
BLUE
YELLOW
YELLOW
EFFECT ON NO.0 MODULE)
(ON/OFF SIGNAL!)
ELECTRIC EXPANSIVE
VALVE(B)
IN-LET WATER TEMP. SENSOR
ANTI-FREEZING TEMP. SENSOR
RED BLACK
CONDENSER
TEMP B
CONDENSER
TEMP A
TOTAL OUT-LET WATER TEMP.
UNIT OUT-LET WATER TEMP.
CRANK
COMPRESSOR A1
Y&G
ORANGE
BLACK
WHITE
BLUE
RED
RED
BLUE
RED
WHITE
CRANK
COMPRESSOR B
RED
AC CONTACTOR
BLACK
WHITE
BLUE
RED
BLUE
RED
WHITE
Y&G
Y&G
S.V(A)
4-VALVE A
S.V(B)
4-VALVE B
MIDDLE
WIRE JOINT
MIDDLE
WIRE JOINT
ORANGE
PURPLE
BLUE
MIDDLE
WIRE JOINT
XT7
RED
WHITE
BLUE
RED
BLACK
BLUEBLUEBLUE
BLUE
YELLOW
YELLOW
BLUE
PURPLE
RED
XP9XP9
T
4
WHITE
Q
P
(E)
GRAY
7-WAY
TERMINAL
XT2
Y
E
L
L
O
W
B
L
A
C
K
LOW VOLTAGE SIGNAL
DON'T CONNECT HIGH VOLTAGE!
G
R
A
Y
GRAY
W1 W2
Q
P
(E)
B
L
A
C
K
R
E
D
PROVIDE
BY U SER
AC CONTACTOR
CN5
H&L_PRO
CN1(WHIITE)
PMV(A)
CN28(RED)
HEAT/COOL
CN4(RE D
WATER_PRO
CN21 CN26 CN33 CN35CN34
123
ON
34
SW2
12
OFF
T3A T3B T4
ICOMP-A2ICOMP-A1 ICOMP-B1
CN7
(BLUE)
HEAT
CN12BLACK)
COMP.B1 S.V(B)
RED
CN19WHITE)
TRANS OUT
L_PRO(2B)
H_PRO(B)
K1(B)
L_PRO(2A)
H_PRO(A)
CURRENT(A2)
ORANGE
RED
HIGH PRESSURE
PROTECTOR B
LOW PRESSURE
PROTECTOR 2B
PURPLE
LOW PRESSURE
PROTECTOR 2A
YELLOW
HIGH PRESSURE
PROTECTOR A
TEMP PROTECTOR
SWITCH A2
TEMP PROTECTOR
SWITCH B1
K1(A1)
TEMP PROTECTOR
SWITCH A1
K1(A2)
CURRENT(B1 )
CURRENT(A1)
XS9
L_PRO(1B)
L_PRO(1A)
RED
LOW PRESSURE
PROTECTOR 1B
PURPLE
LOW PRESSURE
PROTECTOR 1A
MAIN BOARD
CURRENT BOARD
L2L3L4 L1
CN6
CN7
CN8
CN5
CN4
HEAT_A2
COMP A2
2
5
21
3
6
22
4
T3
A1
A2
T2
T1
(U)
(V)
(W)
CRANK
COMPRESSOR A2
RED
BLACK
WHITE
BLUE
RED
BROWN
BLUE
RED
WHITE
Y&G
AC CONTACTOR
HIGH
BLUE
HIGH
FAN A
Y&G
L3
L1
L2
PWM PRESSURE
RELIF VALVE
BROWN
LOW
BROWN
BLACKBLACK
BLUE
RED
RED
BLACK
RED
BROWN BLUE
BROWN
BROWN
BLUE
WHITE
BLACK
WHITE RED
BLACK
BLUE
S2 ON:COOL ONLY OFF:R&C
S3 ON:DIGITAL OFF:FIXED
S4 ON:H-EEPROM OFF:NORMAL
S5 ON:C-EEPROM OFF:NORMAL
S7 ON:REMOTE CONTROL OFF:WIRE CONTROL
S8 ON:LOW TEMP.MODE OFF:NORMAL
S9 ON:30KW OFF:65/130/200/260KW
S2 S3 S4 S5 S7 S8 S9
B
R
O
W
N
R
E
D
RED
ORANGE
ORANGE
OUTDOOR WIRING DIAGRAM
R
E
D
B
L
U
E
SW3
123
ON
34
SW2
12
ON
S2 S3 S4 S5 S7 S8 S9
SW2/SW3 FUCTION DEFINATION
ON
OFF
PROVIDE
BY U SER
DEFAULT SETTING
REMOTE TURN OFF
OFF
ON/OFF
S7
ON
REMOTE FUCTION SETTING
REMOTE COOL
ON OFF
REMOTE HEAT
ON OFF
(ON/OFF SIGNAL!)

Related product manuals