EasyManua.ls Logo

Midea MOCA30U-24HN1-Q

Midea MOCA30U-24HN1-Q
264 pages
To Next Page IconTo Next Page
To Next Page IconTo Next Page
To Previous Page IconTo Previous Page
To Previous Page IconTo Previous Page
Loading...
Four
2.
Four
-
way Cassette Type(Compact)
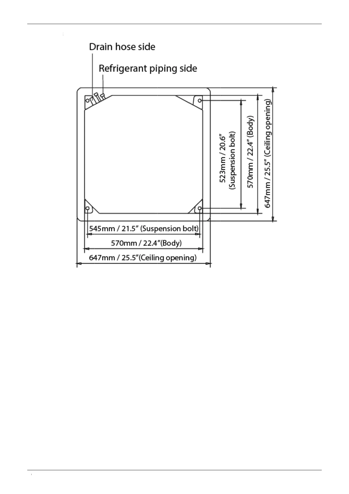
Dimensions
2.
way Cassette Type(Compact)
Dimensions
way Cassette Type(Compact)
Dimensions
Dimensions
11

Table of Contents

Related product manuals