EasyManua.ls Logo

Midea MOCA30U-24HN1-Q - Indoor Unit Installation

Midea MOCA30U-24HN1-Q
264 pages
Print Icon
To Next Page IconTo Next Page
To Next Page IconTo Next Page
To Previous Page IconTo Previous Page
To Previous Page IconTo Previous Page
Loading...
Indoor unit installation
192 Installation
3. Indoor unit installation
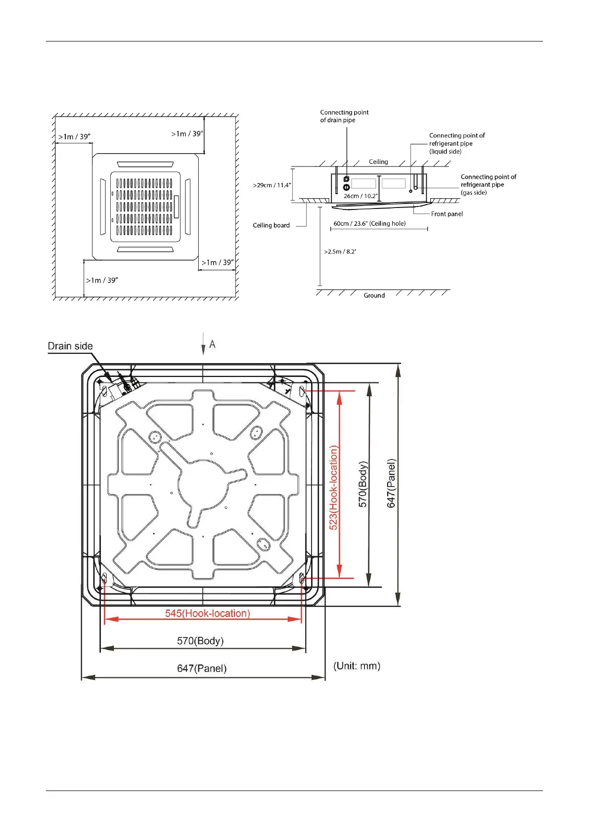
3.1 Compact cassette indoor unit installation
3.1.1 Service space for indoor unit
3.1.2 Bolt pitch
3.1.3 Install the pendant bolt
Select the position of installation hooks according to the hook holes positions showed in upper picture.
Drill four holes of Ø12mm, 45~50mm deep at the selected positions on the ceiling. Then embed the
expansible hooks (fittings).

Table of Contents

Related product manuals