EasyManua.ls Logo

Midea MOCA30U-24HN1-Q - Outdoor Unit Installation (Side Discharge Unit)

Midea MOCA30U-24HN1-Q
264 pages
Print Icon
To Next Page IconTo Next Page
To Next Page IconTo Next Page
To Previous Page IconTo Previous Page
To Previous Page IconTo Previous Page
Loading...
Outdoor unit installation (Side Discharge Unit)
Installation 221
4. Outdoor unit installation (Side Discharge Unit)
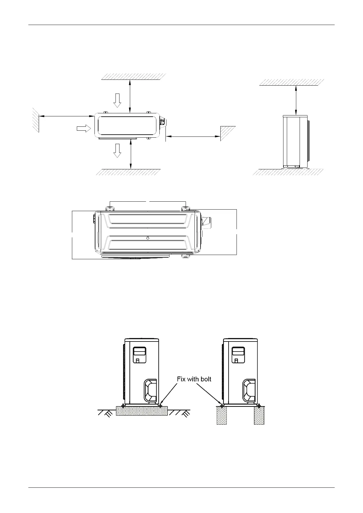
4.1 Service space for outdoor unit
4.2 Bolt pitch
For the value of A,B and D, please refer to the dimension part.
4.3 Install the Unit
Since the gravity center of the unit is not at its physical center, so please be careful when lifting it with a sling.
Never hold the inlet of the outdoor unit to prevent it from deforming.
Do not touch the fan with hands or other objects.
Do not lean it more than 45, and do not lay it sidelong.
Make concrete foundation according to the specifications of the outdoor units.
Fasten the feet of this unit with bolts firmly to prevent it from collapsing in case of earthquake or strong wind.
More than 60cm
More than 30cm
More than 60cm
More than 200cm
Air inlet
Air inlet
More than 30cm
Air outlet
(Wall or obstacle)
Maintain channel
A
B
D

Table of Contents

Related product manuals