EasyManua.ls Logo

Midea MOCA30U-24HN1-Q - Piping Diagrams

Midea MOCA30U-24HN1-Q
264 pages
Print Icon
To Next Page IconTo Next Page
To Next Page IconTo Next Page
To Previous Page IconTo Previous Page
To Previous Page IconTo Previous Page
Loading...
Piping Diagrams
172 Outdoor Units
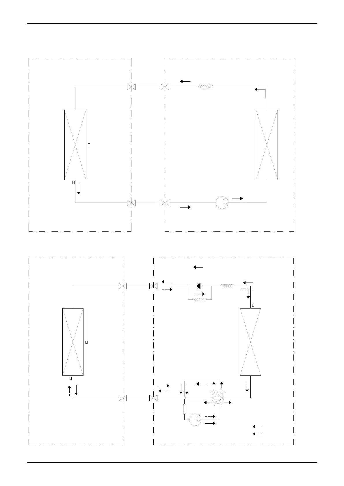
13. Piping Diagrams
MOAB30U-09CN1-Q, MOBA30U-12CN1-QB6, MOBA30U-18CN1-Q, MOCA30U-18CN1-QC0
INDOOR OUTDOOR
LIQUID SIDE
GAS SIDE
HEAT
EXCHANGE
(EVAPORATOR)
HEAT
EXCHANGE
(CONDENSER)
COMPRESSOR
CAPILIARY TUBE
T2 Evaporator
temp. sensor
T1 Room temp.
sensor
MOBA30U-12HN1-Q, MOBA30U-18HN1-Q
LIQUID SIDE
GAS SIDE
HEAT
EXCHANGE
(EVAPORATOR)
HEAT
EXCHANGE
(CONDENSER)
COMPRESSOR
2-WAY VALVE
3-WAY VALVE
4-WAY VALVE
COOLING
HEATING
T2 Evaporator
temp. sensor
T1 Room temp.
sensor
T3 Condenser
temp. sensor
ACCUMULATOR
INDOOR OUTDOOR
CHECK VALVE
(Heating Model only)
CAPILIARY TUBE

Table of Contents

Related product manuals