EasyManua.ls Logo

Midea MOCA30U-24HN1-Q - Page 203

Midea MOCA30U-24HN1-Q
264 pages
Print Icon
To Next Page IconTo Next Page
To Next Page IconTo Next Page
To Previous Page IconTo Previous Page
To Previous Page IconTo Previous Page
Loading...
Indoor unit installation
Installation 199
Hang the air-in grill to the panel, then connect the lead terminator of the swing motor and that of the control
box with corresponding terminators on the body respectively.
Install the 4 corner covers back.
Note: The panel shall be installed after the wiring connected.
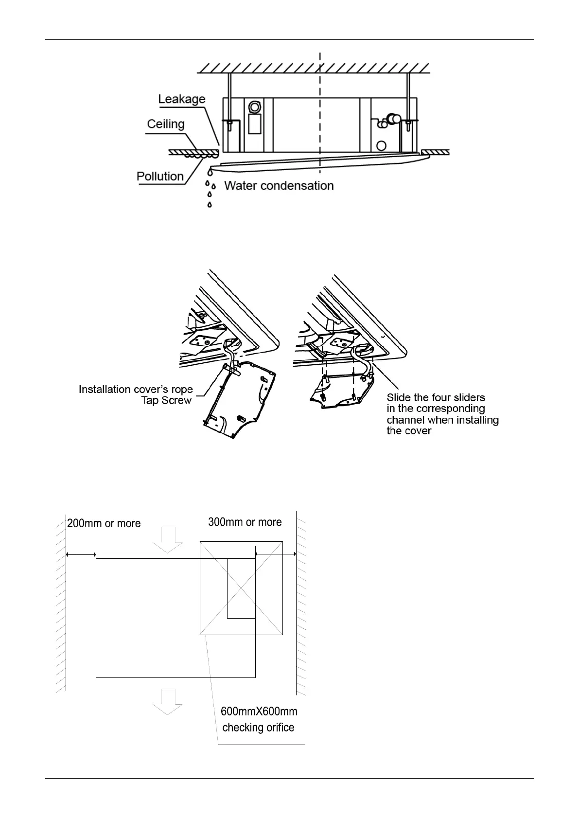
3.3 A5 duct indoor unit installation
3.3.1 Service space for indoor unit
3.3.2 Bolt pitch

Table of Contents

Related product manuals