EasyManua.ls Logo

Midea MV6-i280WV2GN1-E - 8;10;12 HP Piping Diagram

Midea MV6-i280WV2GN1-E
130 pages
Print Icon
To Next Page IconTo Next Page
To Next Page IconTo Next Page
To Previous Page IconTo Previous Page
To Previous Page IconTo Previous Page
Loading...
V6-i VRF 50/60Hz
16
Midea V6-i Series Service Manual
2 Piping Diagrams
8/10/12HP
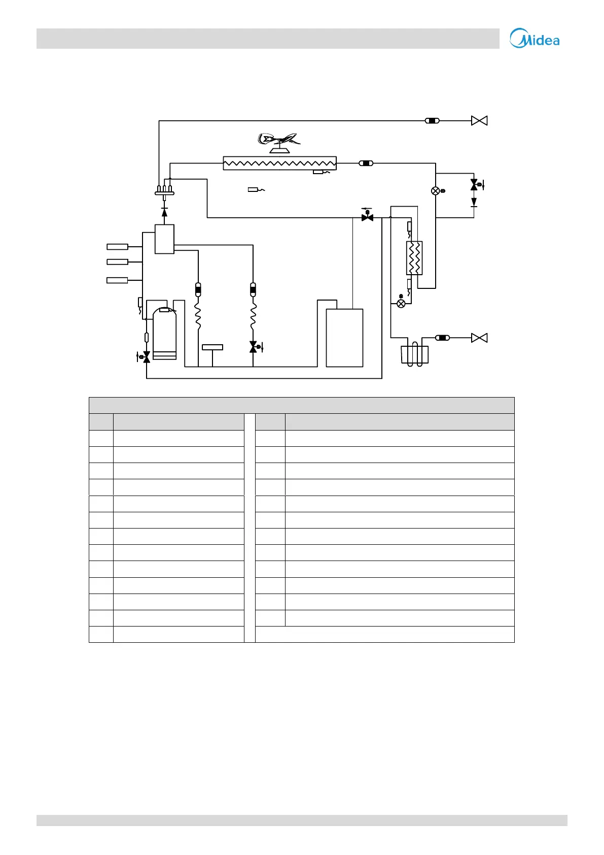
Figure 2-2.1: 8/10/12HP piping diagram
Legend
No.
Parts name
No.
Parts name
1
Compressor
14
Plate heat exchanger
2
Discharge temperature switch
15
Accumulator
3
High pressure switch
T3
Heat exchanger temperature sensor
4
High pressure sensor
T4
Outdoor ambient temperature sensor
5
Oil separator
T6A
Plate heat exchanger inlet temperature sensor
6
Four-way valve
T6B
Plate heat exchanger outlet temperature sensor
7
Heat exchanger
T7C1
Compressor A discharge temperature sensor
8
Electronic expansion valve (EXV)
T7C2
Compressor B discharge temperature sensor
9
Low pressure switch
SV4
Oil return valve
10
Fan motor
SV5
Fast defrosting (in heating) and unloading (in cooling) valve
11
Fan
SV6
Refrigerant bypass EXV valve
12
Stop valve (liquid side)
SV8A
Compressor A vapor injection valve
13
Stop valve (gas side)
7
1
15 12
9
3
2
4
5
6
11
10
14
8
8
13
EXVA
EXVC
E
S
C
T3
T4
T6B
T7C1
T7C2
T6A
SV8A
SV4
SV5
SV6

Table of Contents

Related product manuals