EasyManua.ls Logo

Midea MV6-i280WV2GN1-E - Wiring Diagrams

Midea MV6-i280WV2GN1-E
130 pages
Print Icon
To Next Page IconTo Next Page
To Next Page IconTo Next Page
To Previous Page IconTo Previous Page
To Previous Page IconTo Previous Page
Loading...
V6
66
MideaV6iSeriesServiceManual
4
W
82
8
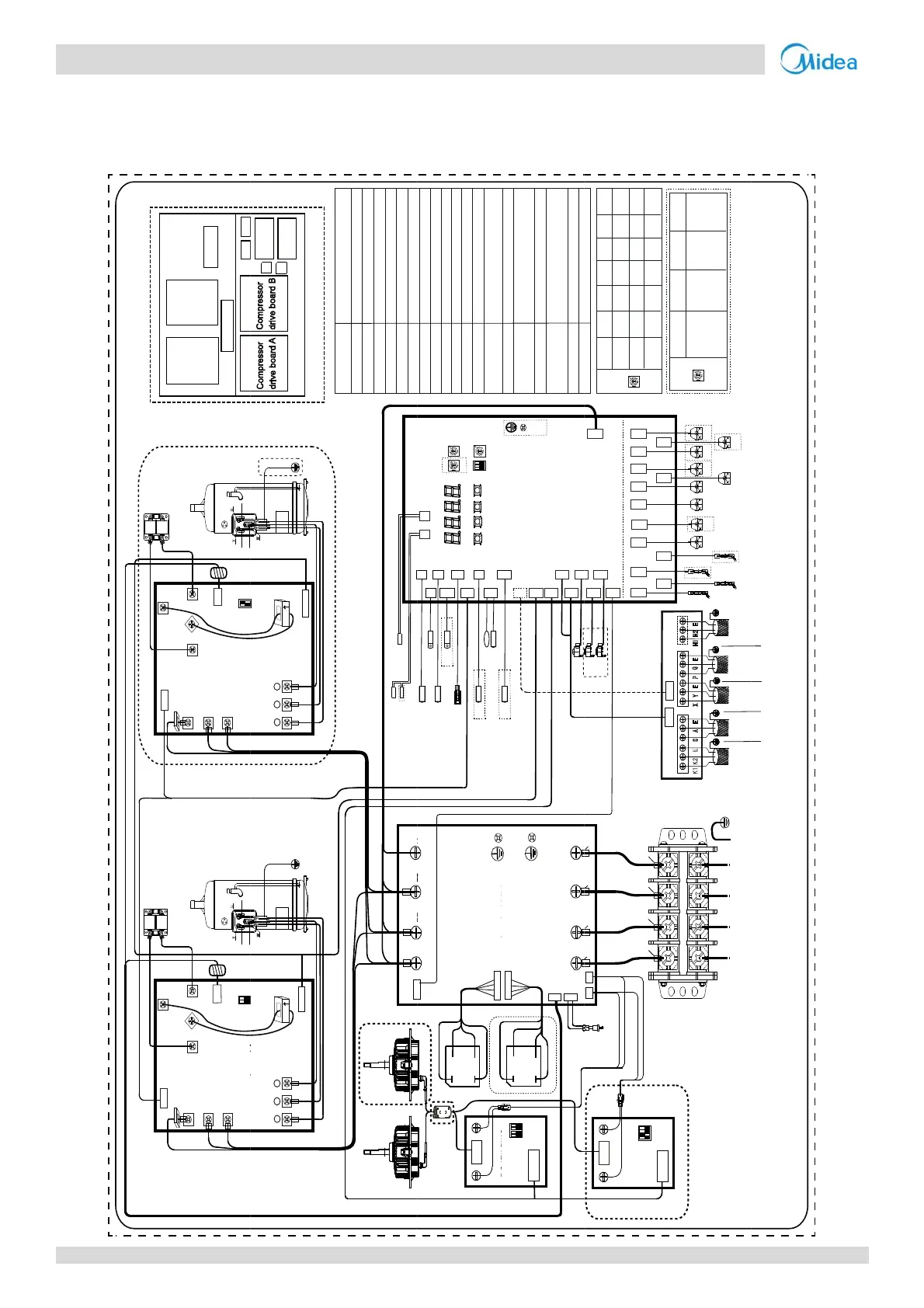
Figu
r
iVRF5
0
W
iringDia
8
HP
r
e54.1:828H
P
N_out
RA
CN4
N_out
RB
CN4
CN10
CN10
Red(Black)
B
l
u
e
White
Red(Black)
0
/60Hz
grams
P
wiringdiagra
CN5
P_out
CN3
N
_
i
n
CN1
P_in
U
V
w
CN4
S7
CN6
CN7
CN11
L1
L2
L3
CN5
P_out
CN3
N
_
i
n
CN1
P_in
U
V
w
CN4
S7
CN6
CN7
CN11
L1
L2
L3
ON
ON
k
c
k
L8
L8
Red
Black
B
l
u
e
C
o
m
p
r
e
s
s
o
r
b
d
A
Red(Black)
Red
White
B
l
u
e
C
o
m
p
r
e
s
s
o
r
Red
White
B
l
u
e
Red(Black)
Red
Black
B
l
u
e
XT1
RA RB
Main
board
AC filter
board
Up layer
Comm. board
C
N
2
C
N
2
Black Blue
t
e core
t
e core
m
U
V W
CN8(CN9)
IC17
COMP A
U
V W
IC17
COMP B
CN12 CN13 CN14
CN12 CN13 CN14
1
2
1
2
Black
Blac
Bla
c
d
r
i
v
e
b
o
a
r
d
A
Red
Black
B
l
u
e
d
r
i
v
e
b
o
a
r
d
B
Red
Black
B
l
u
e
BR1
BR2
DC fan drive
board A
DC fan drive
board B
Down layer
PCBA Layout
Brown
CN8(CN9)
Ferri
t
Ferri
t
FAN B
TP1-PRO
TP2-PRO
L-PRO
L3
L1
L2
L3
N
FAN A
CN30
Red White Blue
Red White Blue
Black
(Left)
(Right)
FAN A/B
H-PRO/L-PRO
EEVA/EEVB/EEVC
HEATA/HEATB
BR1/BR2
COMP A/COMP B
DC Fan
High/Low pressure ON/OFF switch
Electronic expansion valve
Crankcase heater
Inverter compressor A/B
CODE NAME
Single-phase Bridge Rectifier
L-PRO
CN19
H-PRO
CN18
DSP1 DSP2
CN17
H-YL1T7C1
OKUPMENU DOWN
ENC3
S12
IN_NUM
TF1
T7C1
CN4
T7C2
CN5 CN8
T6A
C
T
T7C2
CN1
T4 T3
CN3
TF2
CN3_1
TF2
CN15
T6A
T4
T3
ENC2
POWER
L3
CN12
L1
L2
L3
N
CN9
CN10
CN11
CN3
FAN A
N
P
CN30
H-YL1
1
ON
2
3
ENC1
NUM_ S
A
C
filt
e
r
boa
r
d
DC fan drive
ST1
T3
H-YL1
RA/RB
IC17
SV2/SV4-SV9
Main exchanger pipe temperature
sensor
4-way valve
Reactance
Current sensor
High pressure sensor
Solenoid valve
L8
Current sensor
CN50
+
-~
~
BR1
CN31(CN32)
Red
Red
B
l
u
e
B
l
u
e
Black
Ferrite core
N=1
FAN B
CN100
N8_1
T
6B
CN7
EE
V
CN27
O-FAN
CN26
O-C
CN20
O-O
EEVA
T6B
CN25
N
CN1
CN51
L1
L2
L3
CN2 CN3 CN4
1
ON
2 34
C
N
1
(
C
N
4
)
SW1
w
CN41
Ceboad
DC
fan
drive
board A
Main board
XT1
TP1/TP2-PRO
T4
T7C1/T7C2
TF1/TF2
Plate heat exchanger cooling refrigerant
inlet/outlet temperature sensor
T6A/T6B
T
erminal block
Outdoor ambient temperature sensor
Discharge temperature ON/OFF switch
Discharge temperature sensor
Inverter-module heatsink temperature
sensor
CN28
O-D
+
-~
~
BR2
CN32(CN31)
B
l
u
e
B
l
u
e
Black
CN61
P
(
+
)
N
(
-
)
CN3
N
P
CN8
4
CN4
5
CN67
_
CN66
_
CN85
CN83
CN46
CN44
CN43
CN47
CN67
CN66
0
V
A
CN72
EEVC
EEVC
CN71
EEVB
EEVB
CN4
CN6
ST1 SV4 SV5 SV7 SV8A SV9
SV6 SV8BHEATB
HEATBHEATA
HEATA
CN30
CN82
N-ON
CN41
SV2
1
ON
2 34
C
N
1
(
C
N
4
)
SW1
H-PRO
Yel lo
w
DC fan drive
board B
Red
Black
White
B
l
u
e
Red
Black
White
B
l
u
e
Black
Black Black Black
XT1
T
erminal
block
capacity
setting
ENC2
1
8HP
2
10HP
3
12HP
4
14HP
5
16HP
6
18HP
capacity
setting
ENC2
7
22HP
8
24HP
9
26HP
A
28HP
0
20HP
ENC2
POWER
Comm. board
Brown-1
Blue-1
Brown-2
Blue-2
CN22 CN21
()
()
ST1
4
5
_
1
_
1
CN4
CN6
SV4 SV5 SV7 SV8A SV9
SV6
SV8B
HEATA
HEATA
HEATB
HEATB
ABC
XT1
N
SV2
Power in
Outdoor unit
address
setting
ENC1 0
Master
unit
(Factory
setting)
12
Attention
ENC2 is factory setting
do not change at will
ENC1 is available in multi outdoor unit system
ENC1
NUM_S
Slave
unit 1
Slave
unit 2
To
kilowatt-
hour
Reserved
To
centrali-
zed
controller
To
indoor units
communi-
cation
To
outdoor
units comm-
unication bus
ENC1
is
available
in
multi
outdoor
unit
system
.
The dotted frame section is use by some models.
This connection diagram is for reference only.
Please refer to the actual product.
meter
controller
cation
bus
unication
bus

Table of Contents

Related product manuals