EasyManua.ls Logo

Midea SMK-D140HHN1-3 - Page 12

Midea SMK-D140HHN1-3
52 pages
Print Icon
To Next Page IconTo Next Page
To Next Page IconTo Next Page
To Previous Page IconTo Previous Page
To Previous Page IconTo Previous Page
Loading...
High Temperature Hydro Module
10 202003
Midea
VR High Temperature Hydraulic Module
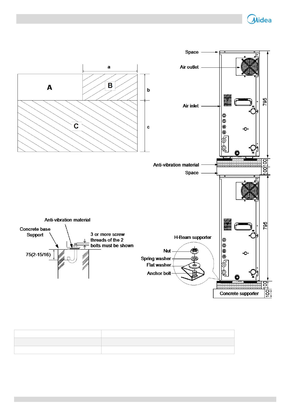
6.3 Installation Space
A
High Temperature Hydraulic module
B
Space for installing piping (on the right side)
C
Space for installation and maintenance (in the front)

Other manuals for Midea SMK-D140HHN1-3

Related product manuals