EasyManua.ls Logo

Miele DA 196 - Installation; Position for the Extraction Cut-Out and Electrical Socket

Miele DA 196
28 pages
Print Icon
To Next Page IconTo Next Page
To Next Page IconTo Next Page
To Previous Page IconTo Previous Page
To Previous Page IconTo Previous Page
Loading...
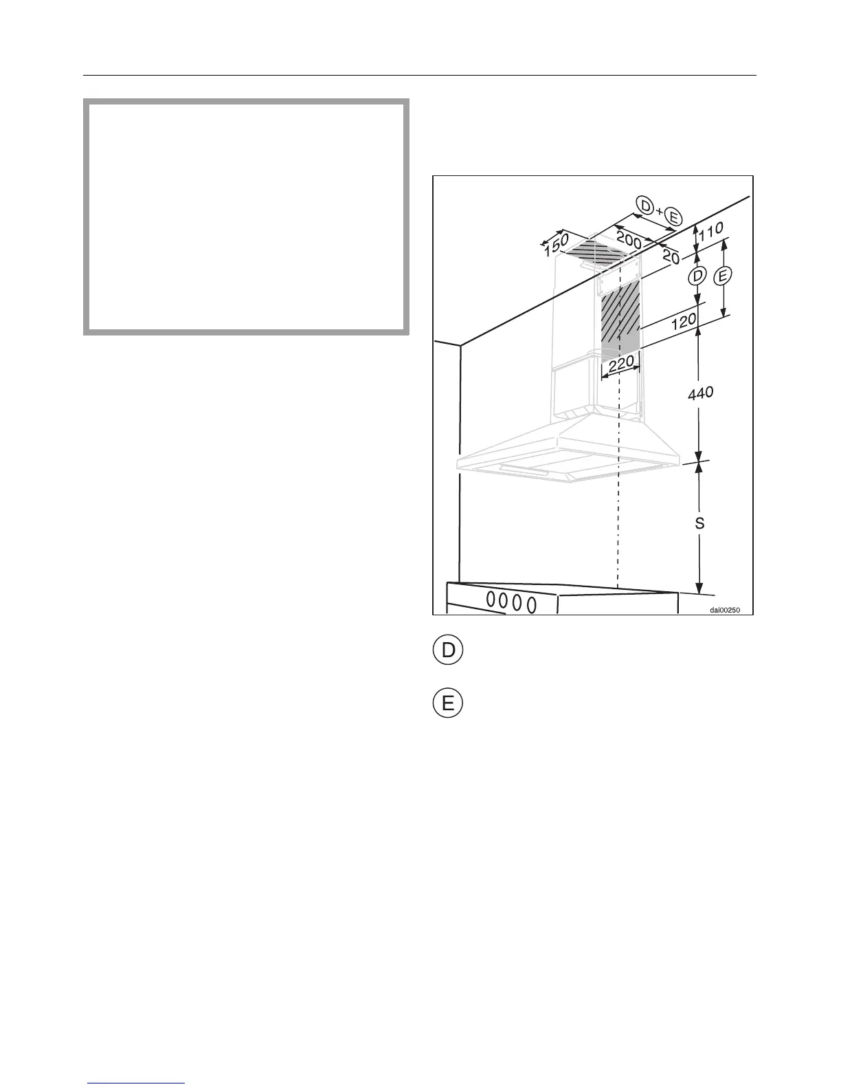
Installation
Safety regulations prohibit the fitting
of this cooker hood over a solid fuel
stove.
The minimum safe distance S be-
tween the top of the hob and the
bottom of the cooker hood should
be at least:
45 cm above electric hobs,
65 cm above gas hobs.
A distance of 65 cm above electric
hobs may be preferable to give more
working space.
Position for the extraction cut-
out and electrical socket
Area for the extraction
cut-out
Area for the
electrical socket
Installation
18

Related product manuals