EasyManua.ls Logo

Miele DA 237 - Installation; Retaining Plates

Miele DA 237
32 pages
Print Icon
To Next Page IconTo Next Page
To Next Page IconTo Next Page
To Previous Page IconTo Previous Page
To Previous Page IconTo Previous Page
Loading...
Installation
Safety regulations prohibit the fitting
of this cooker hood over a solid fuel
stove.
The minimum safe distance be-
tween the top of the hob and the
bottom of the cooker hood (S)
should be at least:
45 cm above electric hobs
65 cm above gas hobs
Australia / New Zealand:
60 cm for electric and gas hobs.
A distance of 65 cm may be preferable
to give more working space.
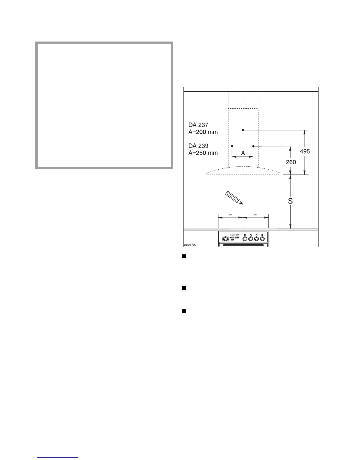
Retaining plates
The cooker hood is mounted on the
wall by means of retaining plates.
Before mounting the retaining plates,
draw a centre line on the back wall
at the selected position.
Mark two holes above the worktop at
a distance of S + 260 mm.
DA 239 only:
In addition, mark the position of a
bore hole at a height of
S + 495 mm.
Installation
22

Related product manuals