EasyManua.ls Logo

Miele DA 3466 - Page 34

Miele DA 3466
52 pages
Print Icon
To Next Page IconTo Next Page
To Next Page IconTo Next Page
To Previous Page IconTo Previous Page
To Previous Page IconTo Previous Page
Loading...
Installation
34
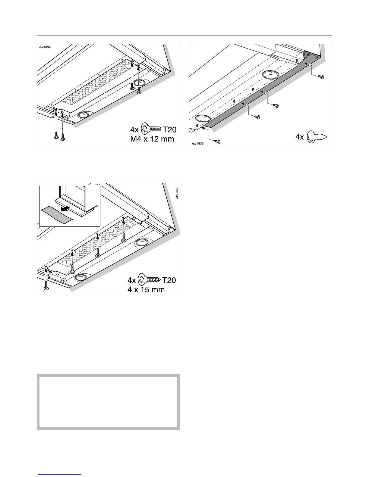
Secur
e the cooker hood to the
brackets from below using two
screws on each side.
P
ull out the deflector plate and
remove the protective film between
the deflector plate and the casing.
Secur
e the cooker hood to the floor
of the housing unit from below using
4 screws (6 screws are required for a
90 cm wide cooker hood).
To avoid damaging the deflector
plate when it is pulled out, care
should be taken to screw the fixing
screws in straight and to ensure that
the screwheads are countersunk.
Secur
e the spacer strip to the back of
the appliance from behind using 4
plastic rivets as shown.

Related product manuals