EasyManua.ls Logo

Migatronic AUTOMIG - Page 66

Migatronic AUTOMIG
78 pages
Print Icon
To Next Page IconTo Next Page
To Next Page IconTo Next Page
To Previous Page IconTo Previous Page
To Previous Page IconTo Previous Page
Loading...
66
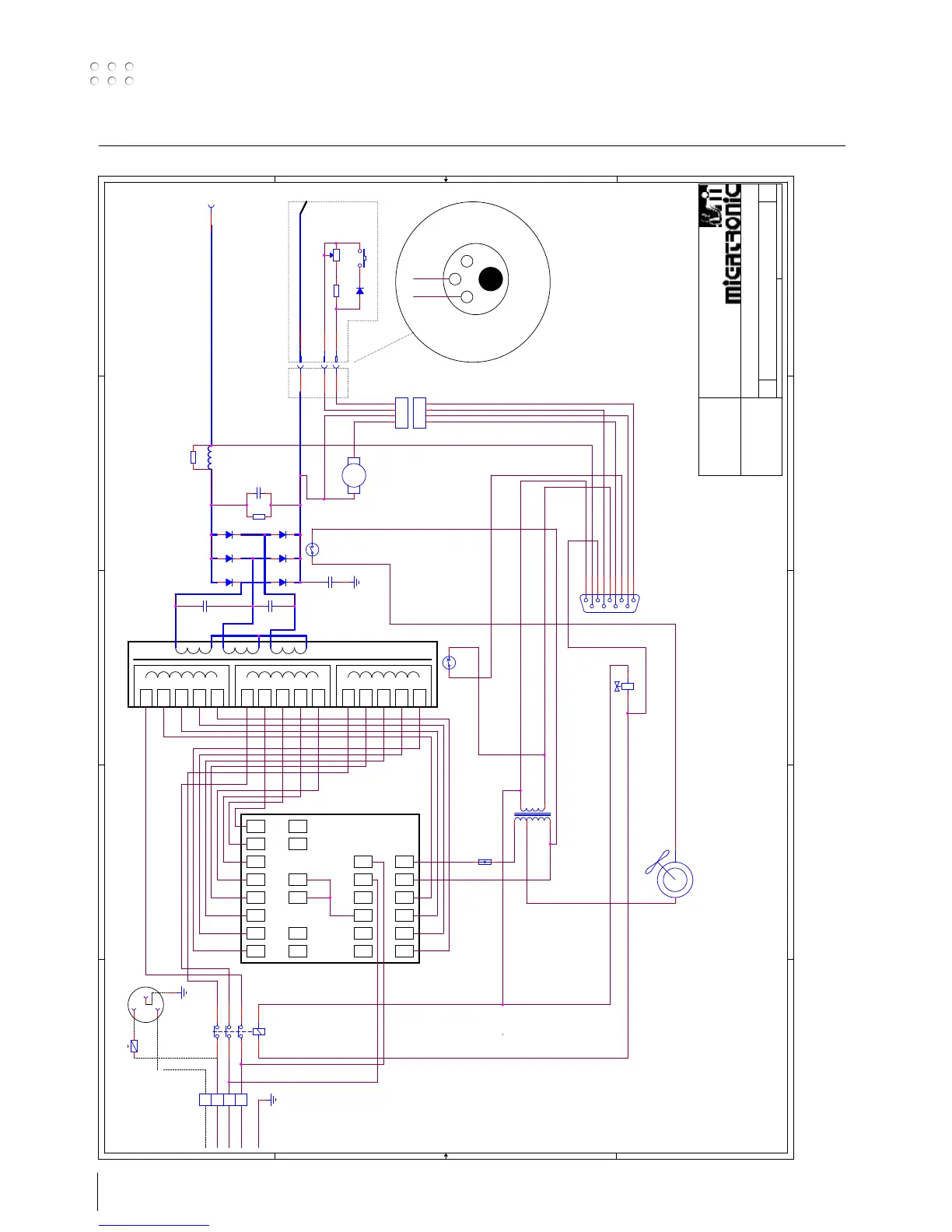
AUTOMIG 223/273, 400V
5
5
4
4
3
3
2
2
1
1
4 4
3 3
2 2
1 1
Blue
Blue
V
W
P E
230V Outlet (kit nr. 78861155)
ATC
20121212
Yellow
Orange
Blue/white
Violet
Violet
Blue
White
Gray
Black
Red
Violet
Black
Black
Yellow
Blue/white
Orange
Orange
Red
200V - 500V: 400mA Slow
Black
WIRE SPEED
Torc h
Aggersundvej 33
Optional kit
(Kit nr. 78861152)
Black
Red
U
O
(Optional )
Red
78171425 78171825
ZA connector
24V
ZA connector
230V
Mains
Breaker
+
-
22
2
33
3
44
4
55
5 UU
FF
AA AB BB
CC
Blue
Orange
Brown
brownOrangeBlue
Black
Brown
Machine front
Welding transformer
Brown
Stepping
switch
Blue
W hite
Gray.
W hite
White
Blue
Title
Size Document Number Rev
Date: Sheet
of
Design :
Date :
Approved :
Date :
_
Automig 223-273 400Volt
Migatronic A/S
9690 Fjerritslev
Denmark
A3
11Friday, December 14, 2012
Title
Size Document Number Rev
Date: Sheet
of
Design :
Date :
Approved :
Date :
_
Automig 223-273 400Volt
Migatronic A/S
9690 Fjerritslev
Denmark
A3
11Friday, December 14, 2012
Title
Size Document Number Rev
Date: Sheet
of
Design :
Date :
Approved :
Date :
_
Automig 223-273 400Volt
Migatronic A/S
9690 Fjerritslev
Denmark
A3
11Friday, December 14, 2012
TR5
Trafo 230/400V
0V
230V
400V
24V
0V
2K7
1K
470nF
470nF
5
9
4
8
3
7
2
6
1
3.3uF
TRIGGER
120'C NC
1 2
Gas valve
33nF"Y" 70 'C NO
FUSE
24V DC-MOTOR
10A
1
2
3
4
1
2
3
4
10K

Other manuals for Migatronic AUTOMIG

Related product manuals