EasyManua.ls Logo

Mitsubishi MELSEC-A A2USHCPU-S1 - Page 221

Mitsubishi MELSEC-A A2USHCPU-S1
272 pages
Print Icon
To Next Page IconTo Next Page
To Next Page IconTo Next Page
To Previous Page IconTo Previous Page
To Previous Page IconTo Previous Page
Loading...
APP - 26
APPENDICES
POINTS
(1) Contents of the M special relays are all cleared by power off, latch clear or
reset with the reset key switch. When the RUN/STOP key switch is set in the
STOP position, the contents are retained.
(2) The above relays with numbers marked *1 remain "on" if normal status is
restored. Therefore, to turn them "off", use the following method:
(a) Method by use program
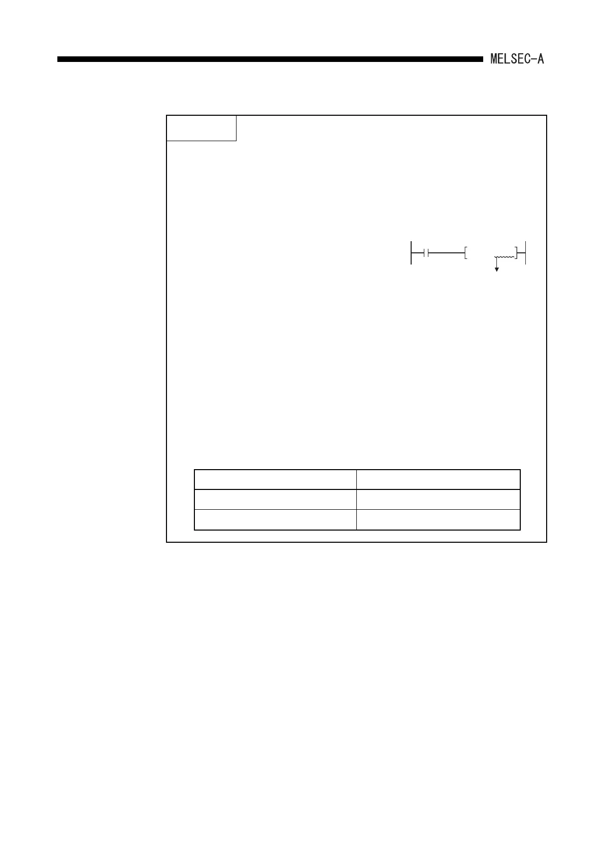
Insert the circuit shown at right into
the user program and turn on the
reset execution command contact to
clear the special relay M.
(b) Use the test function of the peripheral device to reset forcibly.
For the operation procedure, refer to the manuals for peripheral devices.
(c) By moving the RESET key switch on the CPU front to the RESET
position, the special relays are turned off.
(3) Special relays marked *2 above are switched on/off in the sequence
program.
(4) Special relays marked *3 above are switched on/off in test mode of the
peripheral equipment.
(5) Turn OFF the following special relays after resetting the related special
resisters. Unless the related special registers are reset, the special relays will
be turned ON again even if they are turned reset. (Except for the AnU,
A2US(H), and QCPU-A (A mode).)
Special Relay Related Special Resister
M9000 D9100 to D9107
M9001 D9116 to D9123
Reset execution
command
RST M9000
Special function relay to be reset

Table of Contents

Related product manuals