EasyManua.ls Logo

Mitsubishi QX42 - Page 131

Mitsubishi QX42
158 pages
To Next Page IconTo Next Page
To Next Page IconTo Next Page
To Previous Page IconTo Previous Page
To Previous Page IconTo Previous Page
Loading...
10 - 4 10 - 4
MELSEC-Q
10 PART NAMES
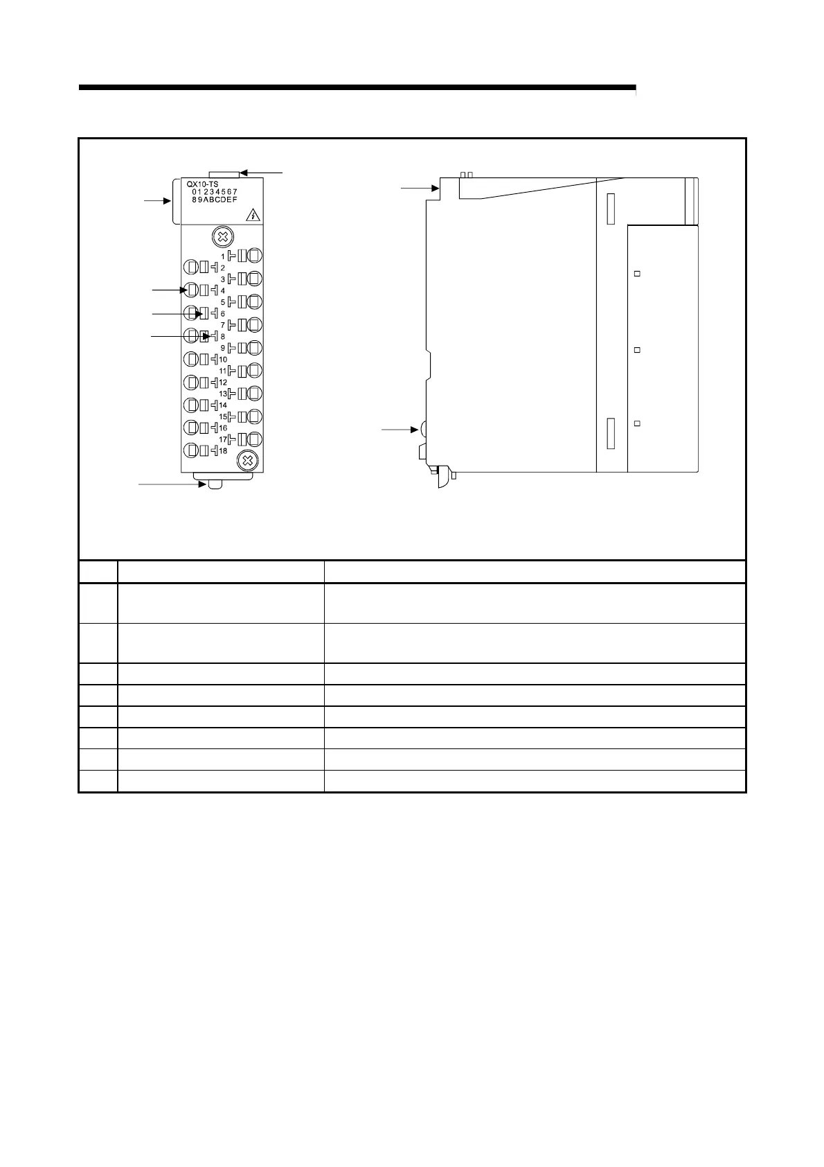
Spring clamp terminal block type
1)
2)
3)
4)
5)
6)
8)
7)
No. Name Description
1) Module fixing hook
Hook used to fix the module to the base unit.
(Single-motion installation)
2) I/O indicator LED
Used to indicate the I/O status (on/off). The corresponding LED turns on
when the I/O status is on.
3) Wire insertion slot Hole inserted a wire to in wiring (Circular hole)
4) Tool insertion slot Hole inserted a spring clamp terminal block tool to in wiring (Square hole)
5) Connection check indicator Comes out if a wire is inserted in wiring
6) Module loading lever Used to load the module into the base unit
7) Module fixing screw hole Used to fix the module to the base unit.
8) Metal fitting Do not touch as this may be deformed.

Table of Contents

Related product manuals