EasyManua.ls Logo

Mitsubishi SRK 35ZS-W

Mitsubishi SRK 35ZS-W
81 pages
To Next Page IconTo Next Page
To Next Page IconTo Next Page
To Previous Page IconTo Previous Page
To Previous Page IconTo Previous Page
Loading...
-
17
-
'18 • SRK-T-250
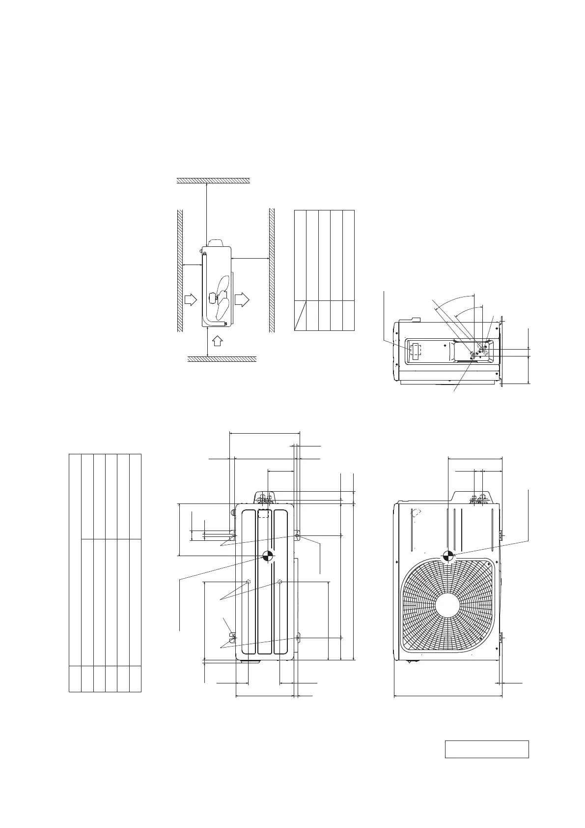
Hole on wall for right rear piping
Hole on wall for left rear piping
Gas piping
Outlet for pipingon both side
Drain hose
F
E
C
D
Symbol
A
φ65
VP16
Content
φ65
SRK20, 25, 35 φ9.5238")(Flare
Wireless remote control
SRK50 φ12.712")(Flare
Wired remote control
Option
φ6.3514")(Flare
Liquid piping
B
Space for installation and service when viewing from the front
Unit:mm
Notes1The model name label is attached
     on the right side of the unit.
2To connect the wired remote control,
     the interface kitSC-BIKN2-Eis required.
□120
19
60 24
167
45
45
870
290
Outlet for downward piping
Refer to the top view
230 3
6013
530
450
185
190
43
170
585
13
Service space
Unit
Service space
Service space
Installation board
142.5 142.5
100
50
9
47
268
47
80 100
Terminal block
60 3535 60
□120 19
210
55 55
537
528
SRK 50 :475
Service space
170
210
435 435
SRK 20,25,35 :469
45
F
D E
A
B
C
F F
φ9.5238"
Flare
Content
C Pipecable draw-out hole
D
E Anchor bolt hole
Drain discharge hole
Symbol
B
A Service valve connectiongas side
M10-12×4 places
φ20×2 places
Service valve connectionliquid side
φ6.3514"
Flare
Unit:mm
L2
Inlet
Outlet
Inlet
L3
L1
Service
space
( )
L4
L2
L3
L4
L1
100 or more
80 or more
250 or more
280 or more
Terminal block
2-12×16
Slot hole
2-R
Installation space
63.4
390.6
390.6
69.4
111.6 510 158.4
780 61.9
17.9
14.8 312.5 24.3
351.6
50.6
12
97.7 42.5
40°
40°
138.4 33.5
15.8
290540 20
14.6
16.4
260
130
270
Center of gravity
Center of gravity
Notes
1 The unit must not be surrounded by walls on the four sides.
2 The unit must be fixed with anchor bolts. An anchor bolt must not
protrude more than 15mm.
3 If the unit is installed in the location where there is a possibility of
strong winds, place the unit such that the direction of air from the
outlet gets perpendicular to the wind direction.
4 Leave 200mm or more space above the unit.
5 The wall height on the outlet side should be 1200mm or less.
6 The model name label is attached on the right side of the unit.
A
B
C
E
D
E
(2) Outdoor units
Models SRC20ZS-W, 25ZS-W, 35ZS-W
RCV000Z036

Related product manuals